Carmalt Road

LONDON

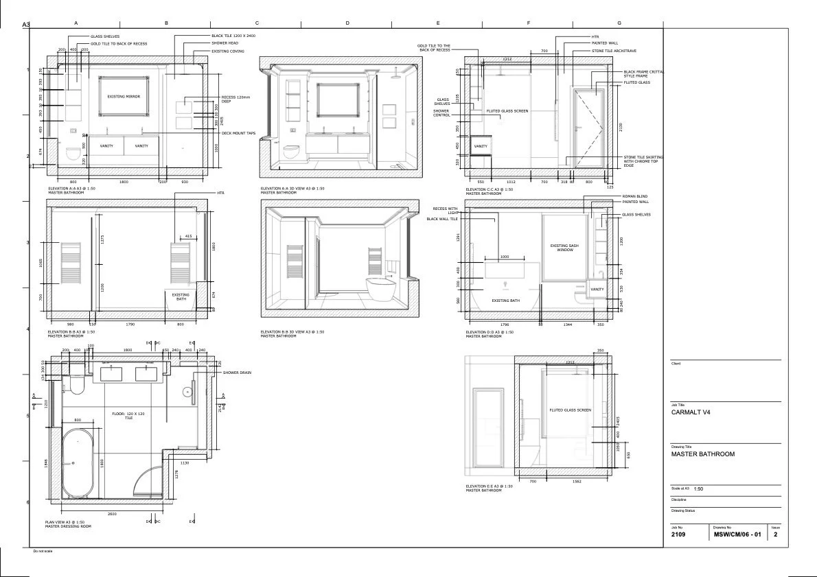
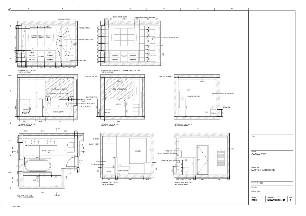
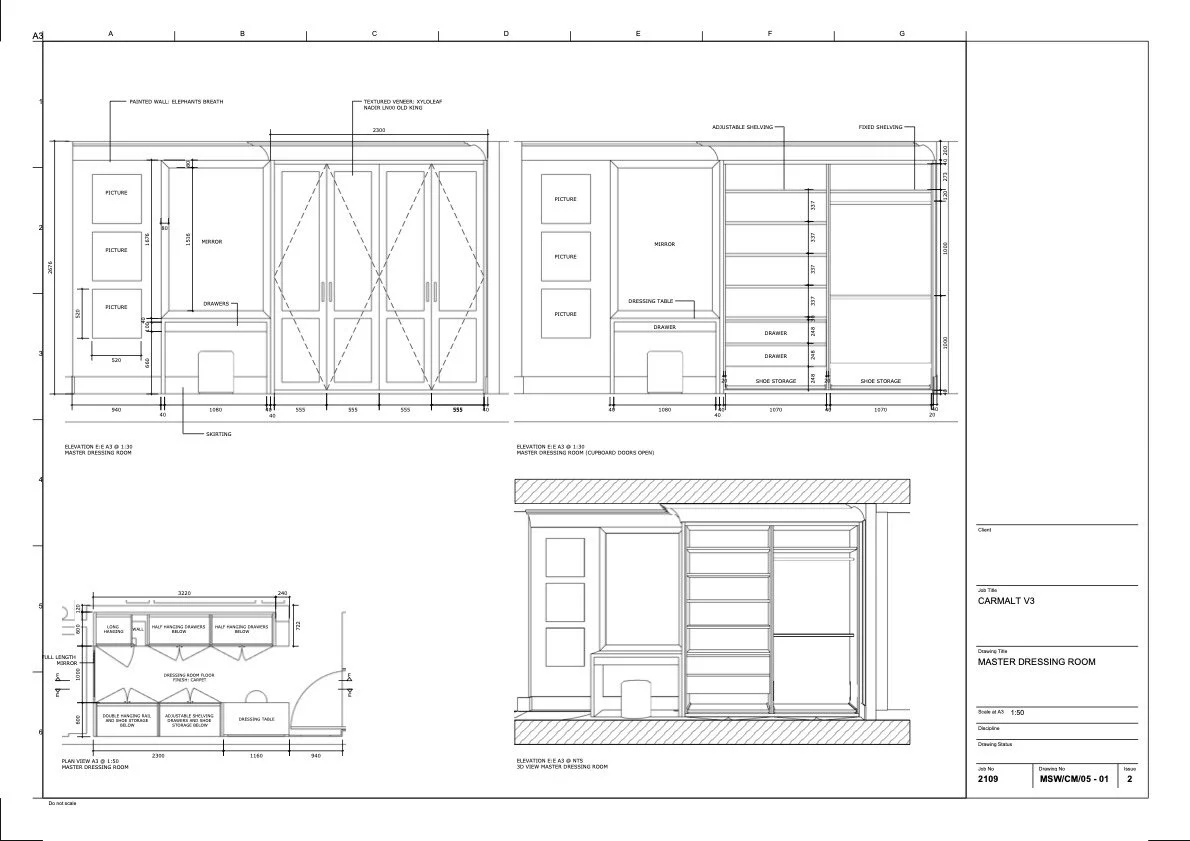
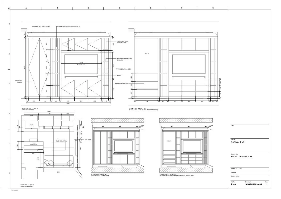
Studio Southsea was commissioned by interior designer Daniela Erasmus to support the design development of this modern London home. The scheme reflects Daniela’s sleek and considered approach, defined by clean lines, balanced proportions, and a calm, neutral material palette.

Client: Interior Designer | Daniela Erasmus, Owner of Daniela Erasmus Interiors

    • Modern interior with a strong emphasis on quality and materiality.

    • Carefully considered spatial planning and joinery detailing.

    • Visuals developed to clearly communicate design intent

    Scope: CAD Drawings | 3D Modelling | 3D Visualisation