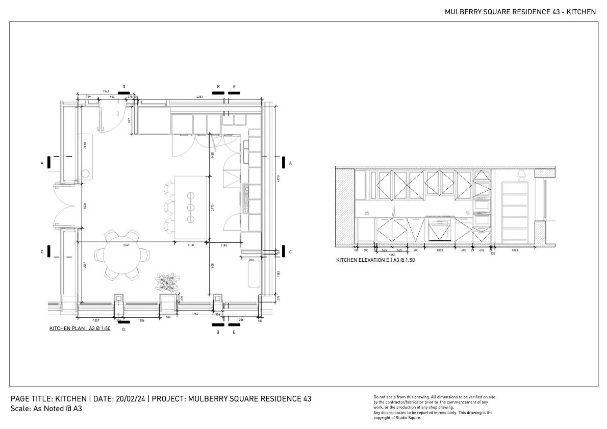
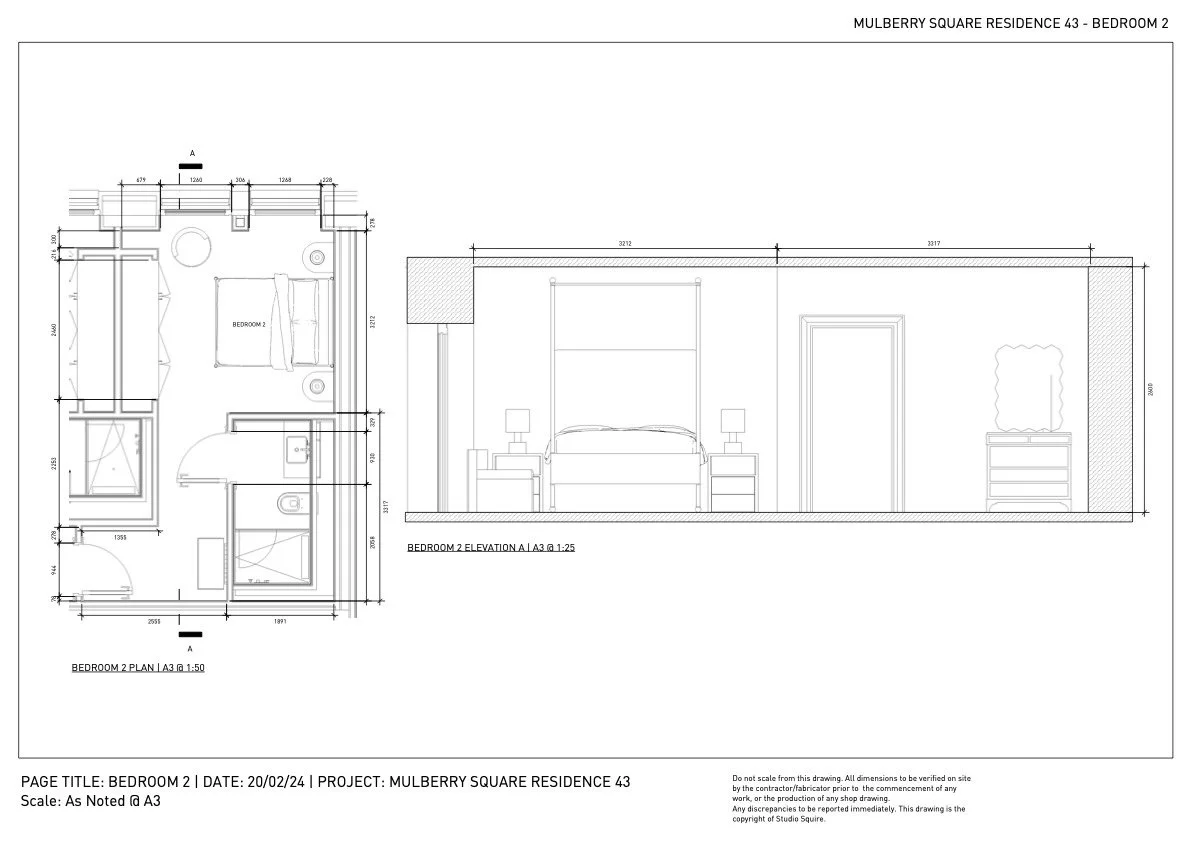
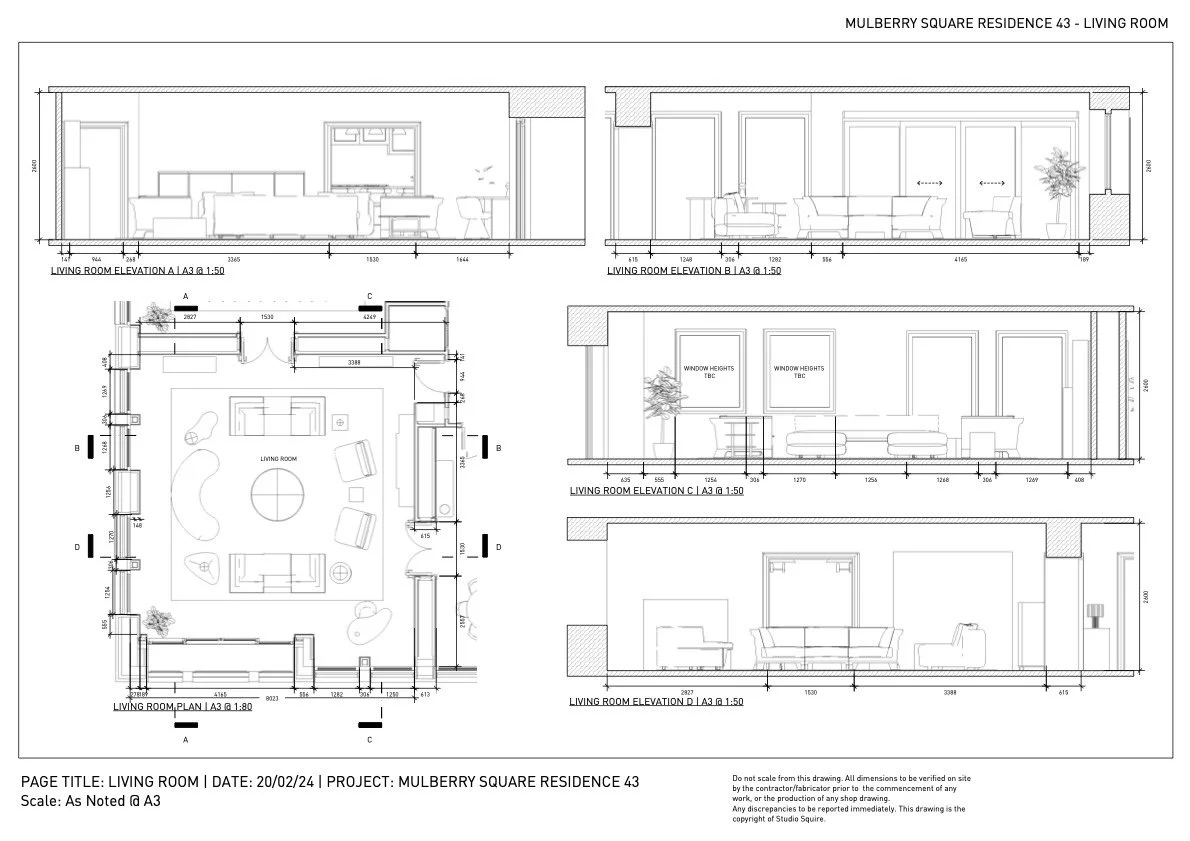
Chelsea Barracks I

CHELSEA, LONDON

Studio Southsea collaborated on three luxury apartments in the prestigious Chelsea Barracks development in London, delivering high-quality drawing packs and 3D visualisations.

Client: Interior Design Studio (Confidential)

    • Apartments 31, 32 and 43.

    • Delivered tailored documentation to support the luxury design vision.

    • A collaborative process with the design team.

    • Fast turnaround to meet project timelines.

    Scope: 3D Modelling | 3D Visualisation | Technical Design