Eastfield Close

EMSWORTH

Studio Southsea was commissioned to deliver a full e-design service for this family home in Emsworth. The project centred on reimagining the kitchen as a practical, sociable space tailored to the client’s everyday routine, while carefully working within the constraints of the existing layout. 

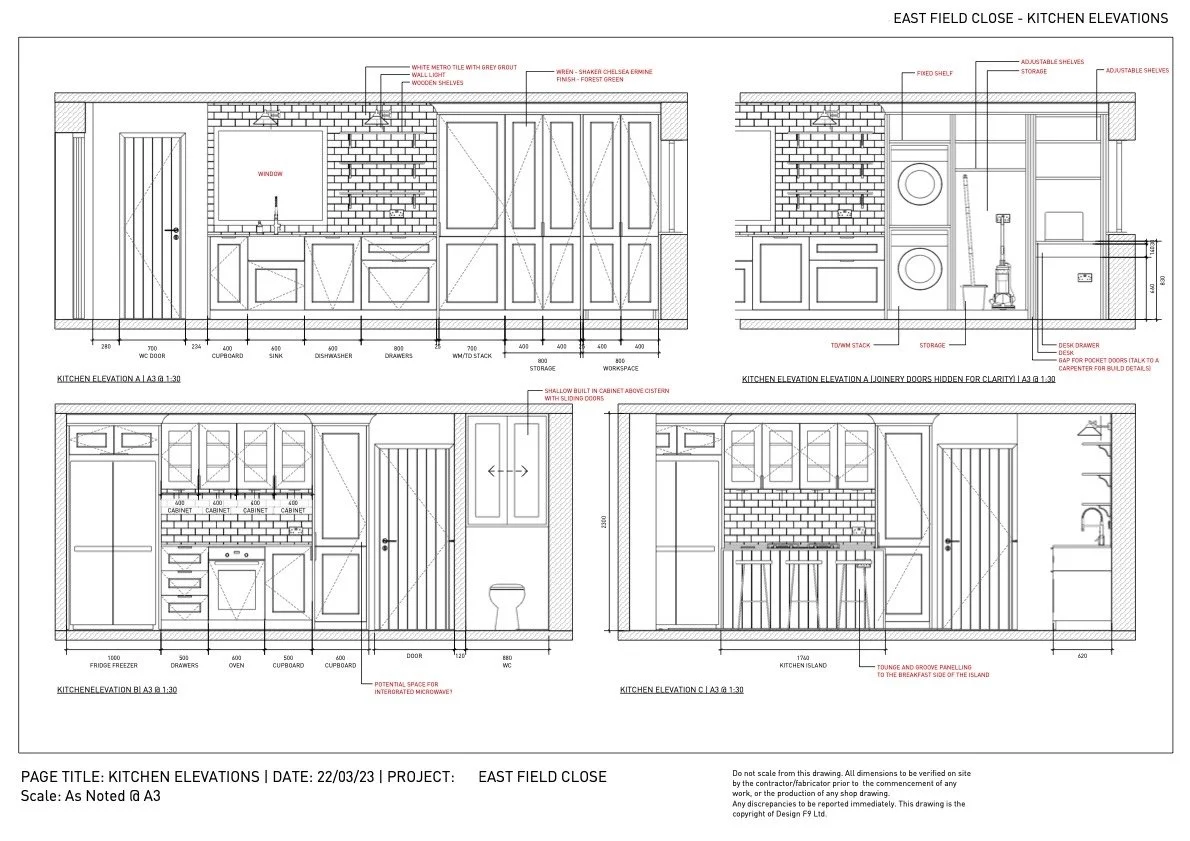
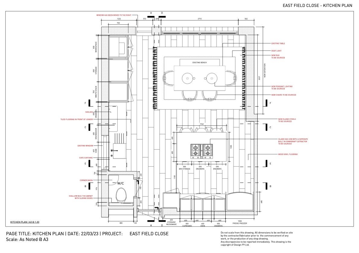
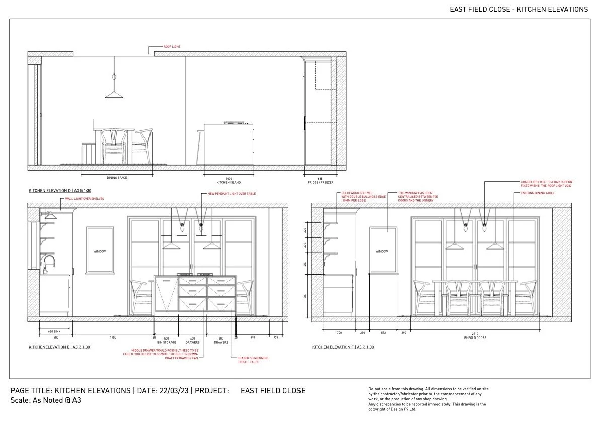
The service combined early-stage research and concept design with detailed presentations, 3D modelling, and a comprehensive CAD drawing pack. Multiple options were explored throughout the process, including layout refinements, storage solutions, material choices, and appliance configurations, allowing design decisions to be tested and resolved remotely with clarity and confidence.

Client: Private Residential Client

    • Full remote e-design service from concept through to technical documentation.

    • Detailed kitchen planning developed around existing constraints and retained elements.

    • Clear presentations and visuals used to support confident decision-making.

    • Comprehensive drawing pack produced to support build and installation.

    Scope: Research | Concept Design | Presentation | 3D Modelling | CAD Drawing Pack | 3D Visualisations