Gerard Road

BARNES, LONDON

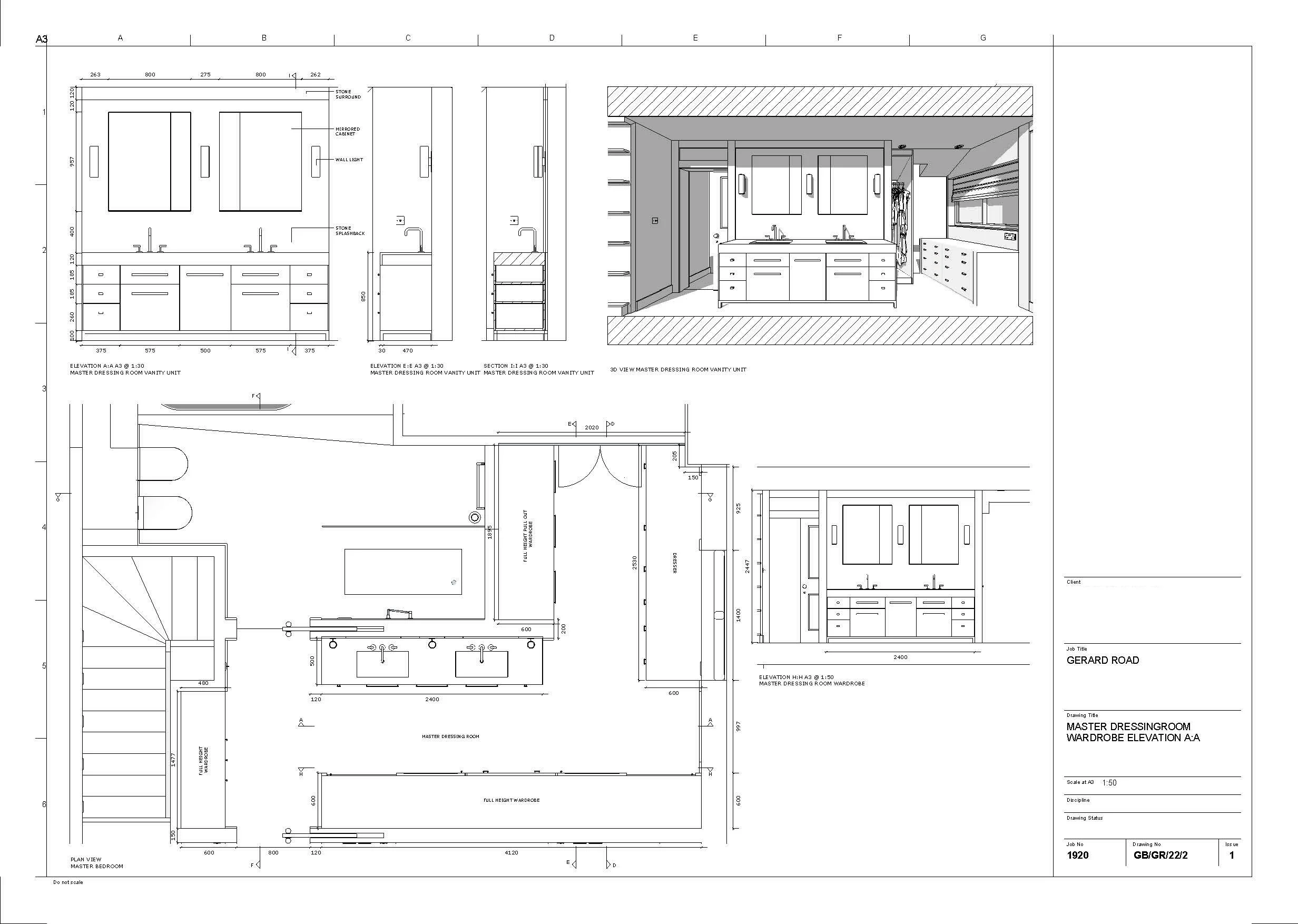
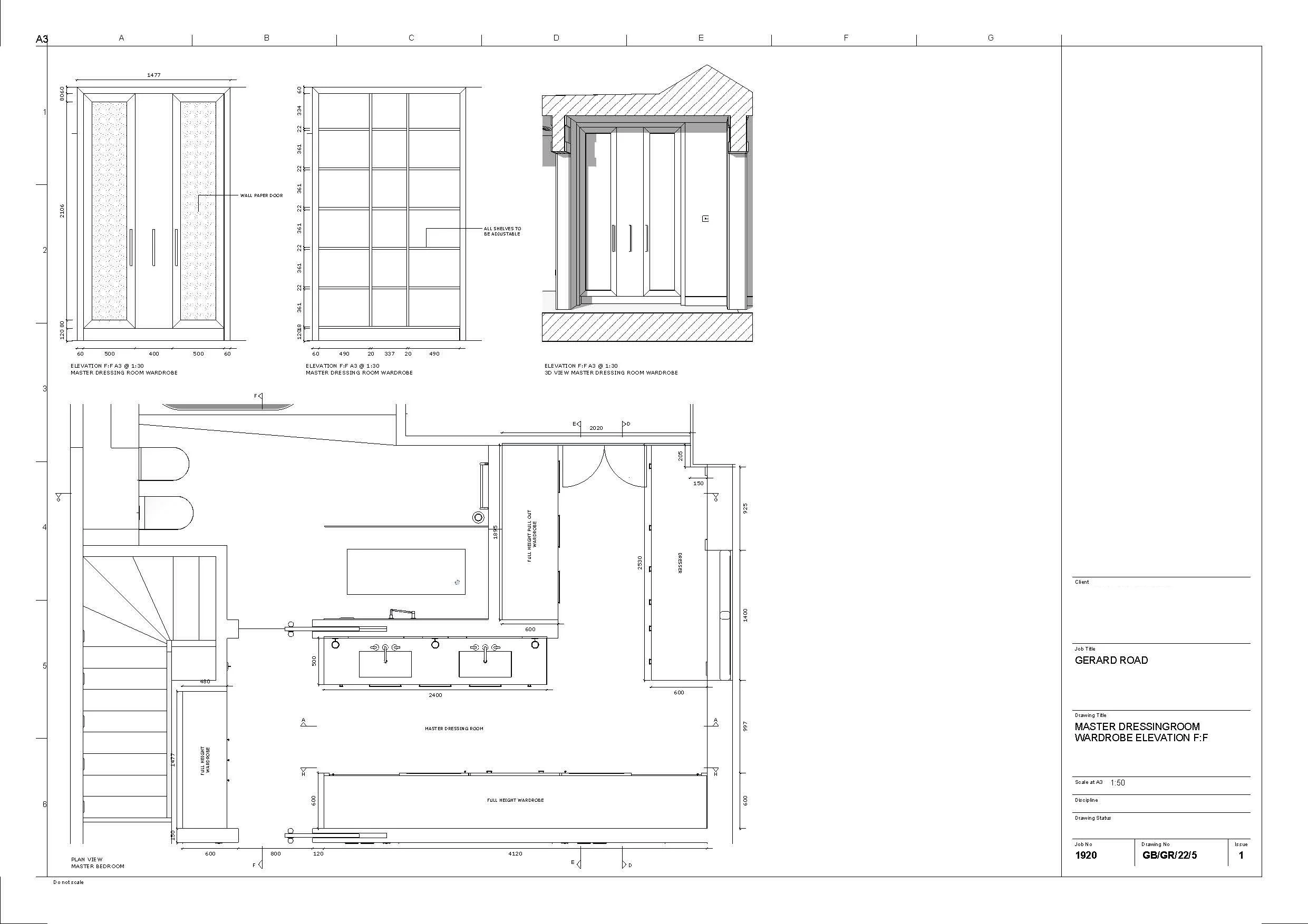
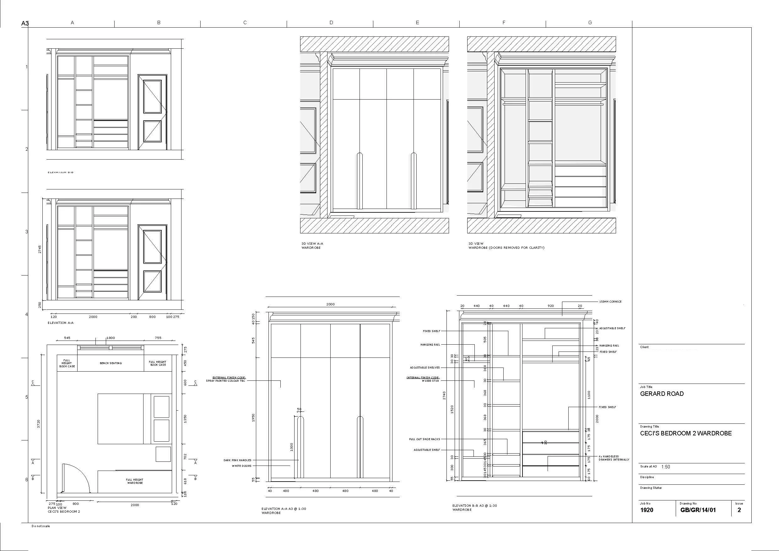
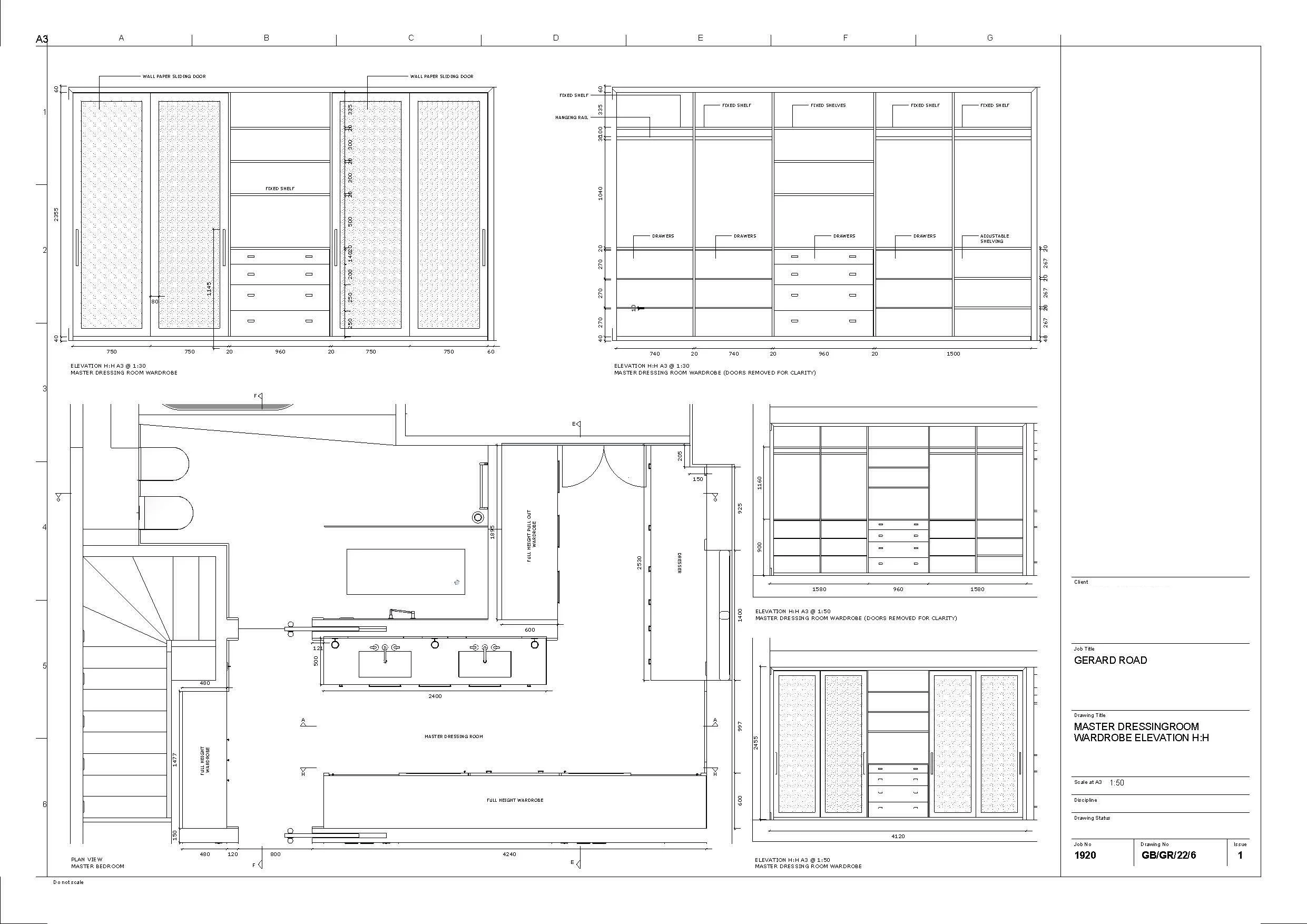
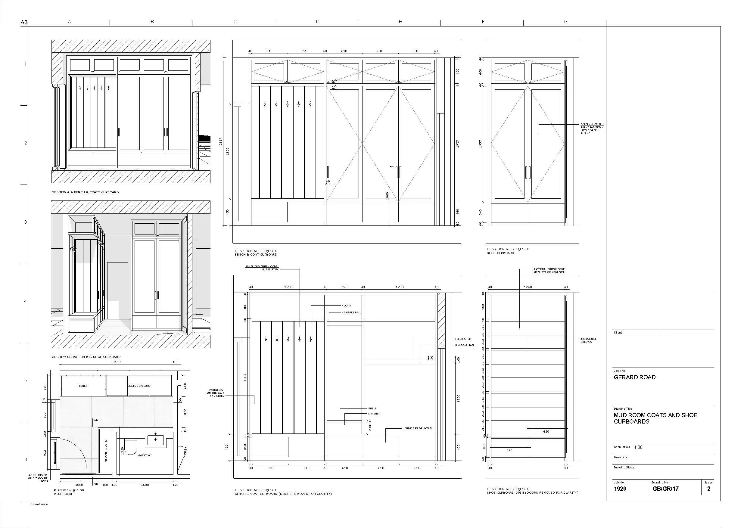
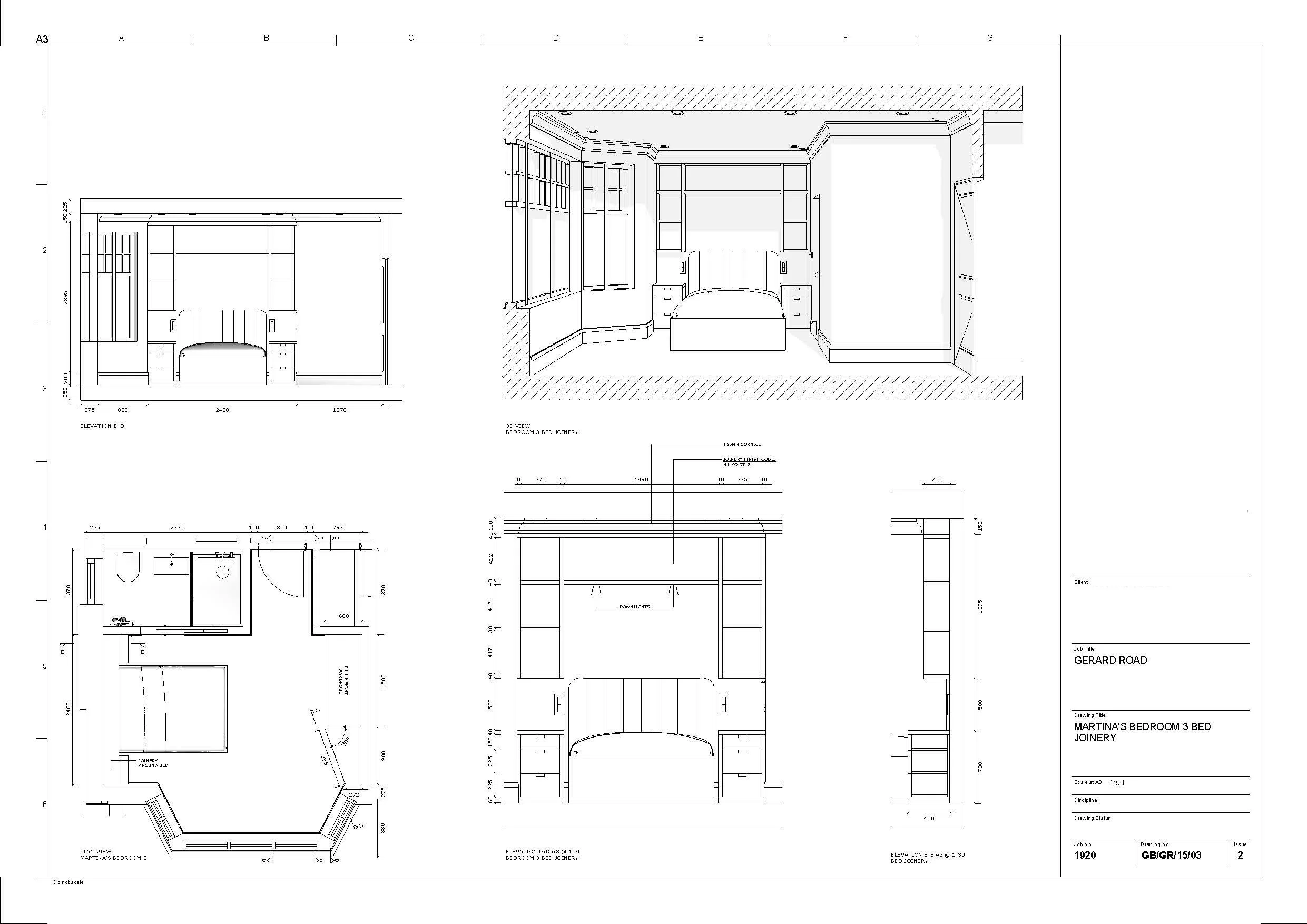
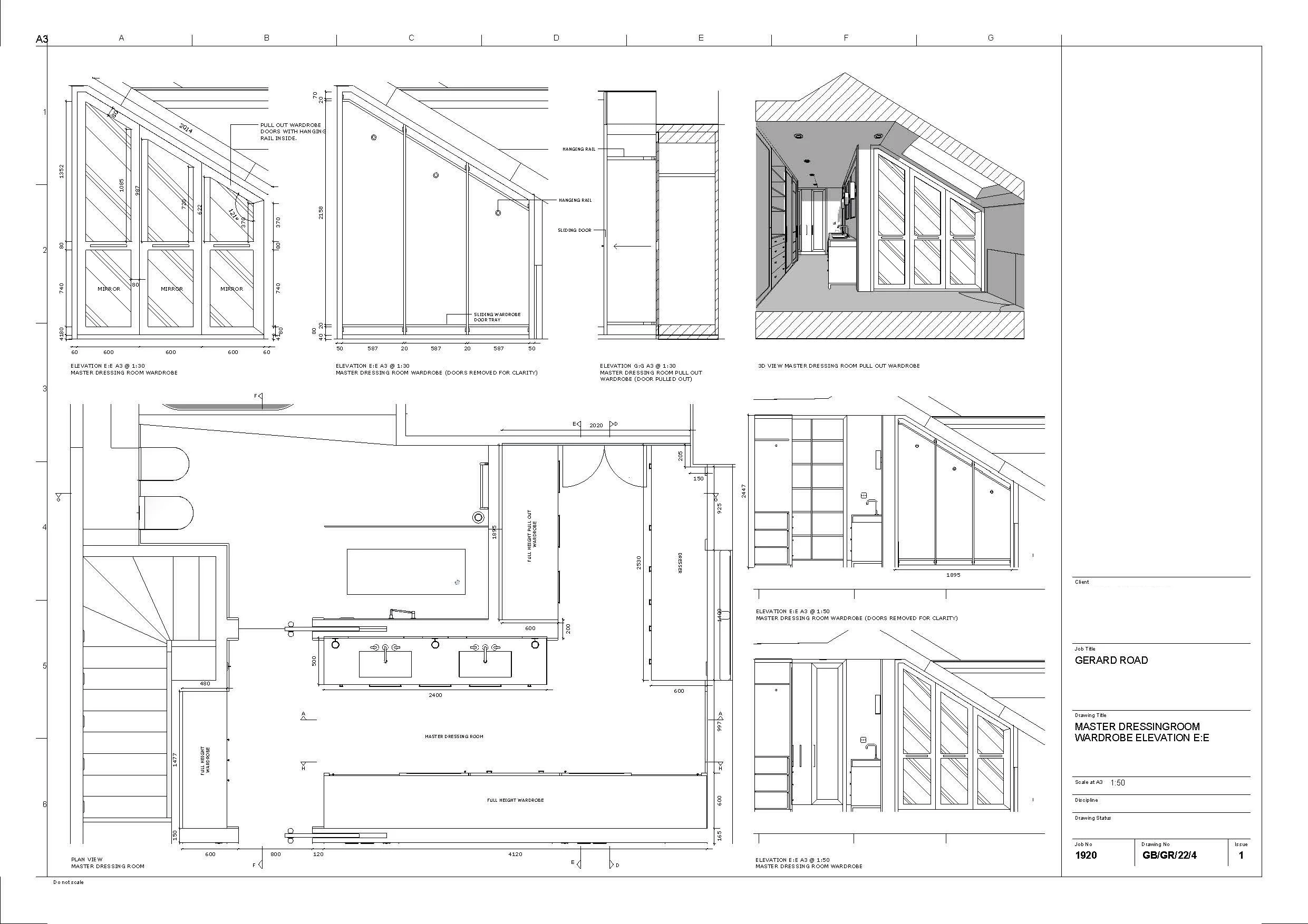
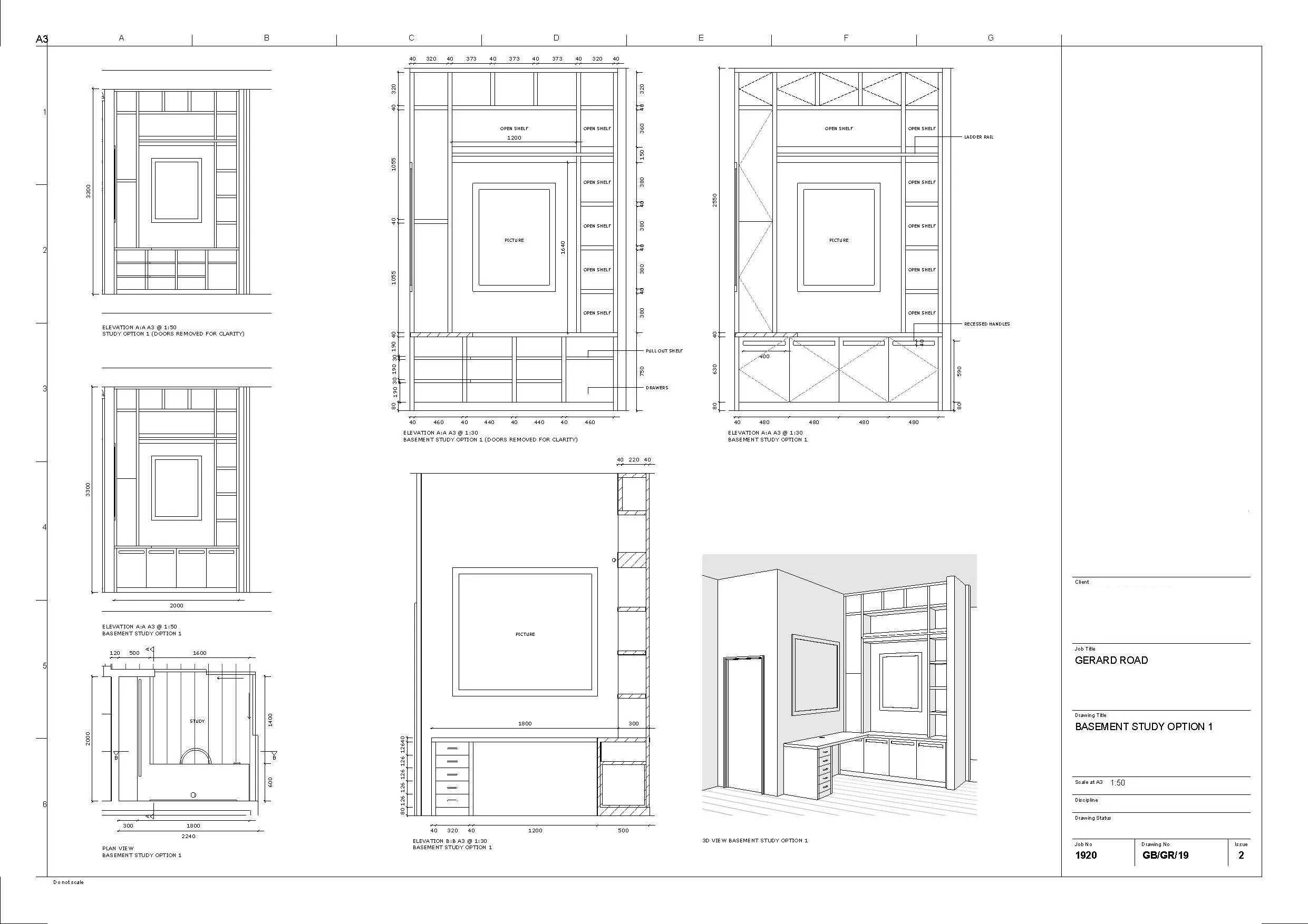
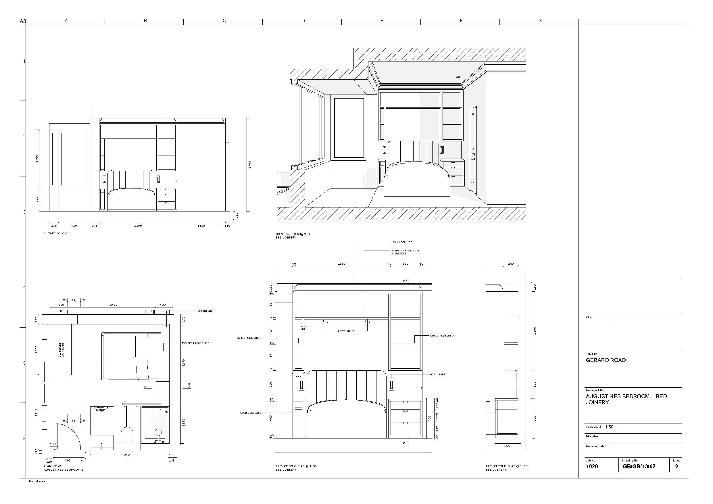
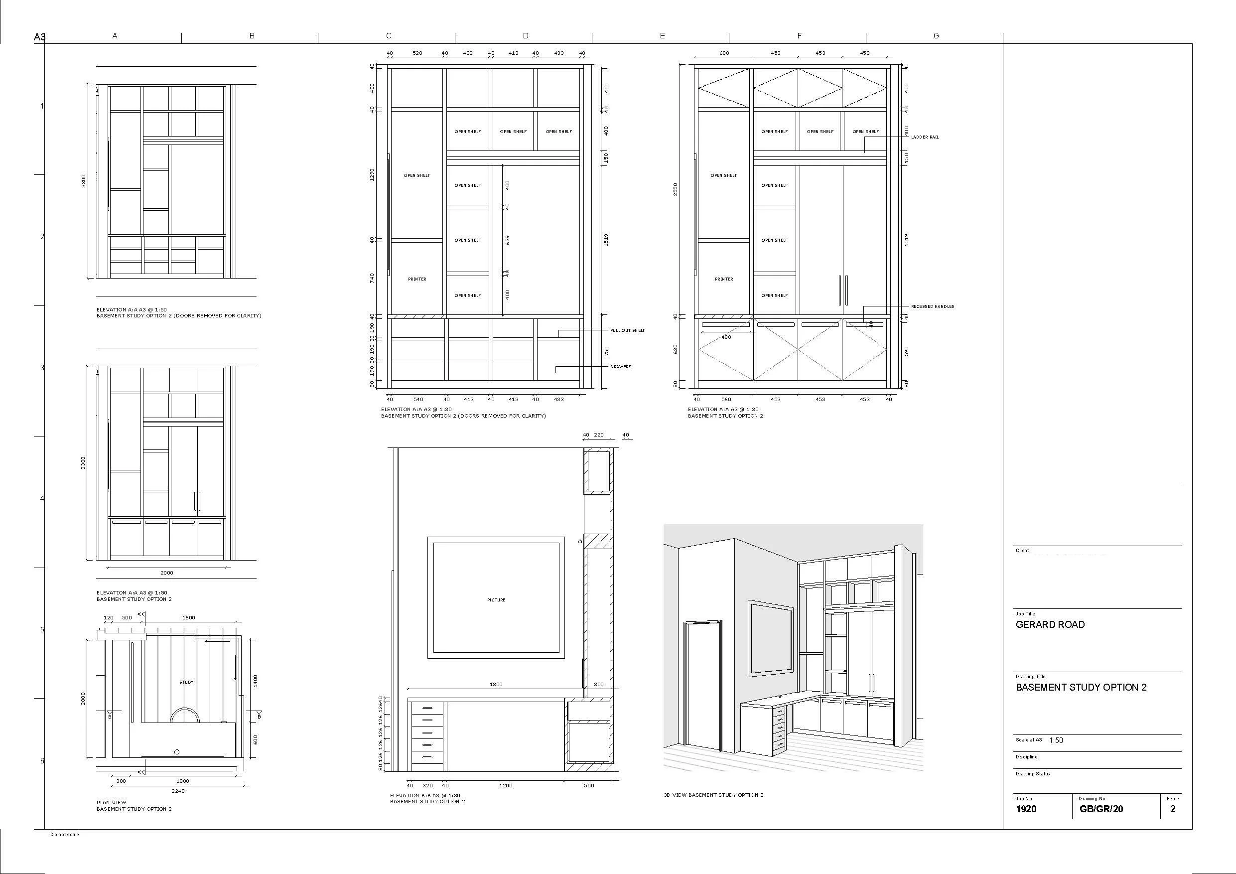
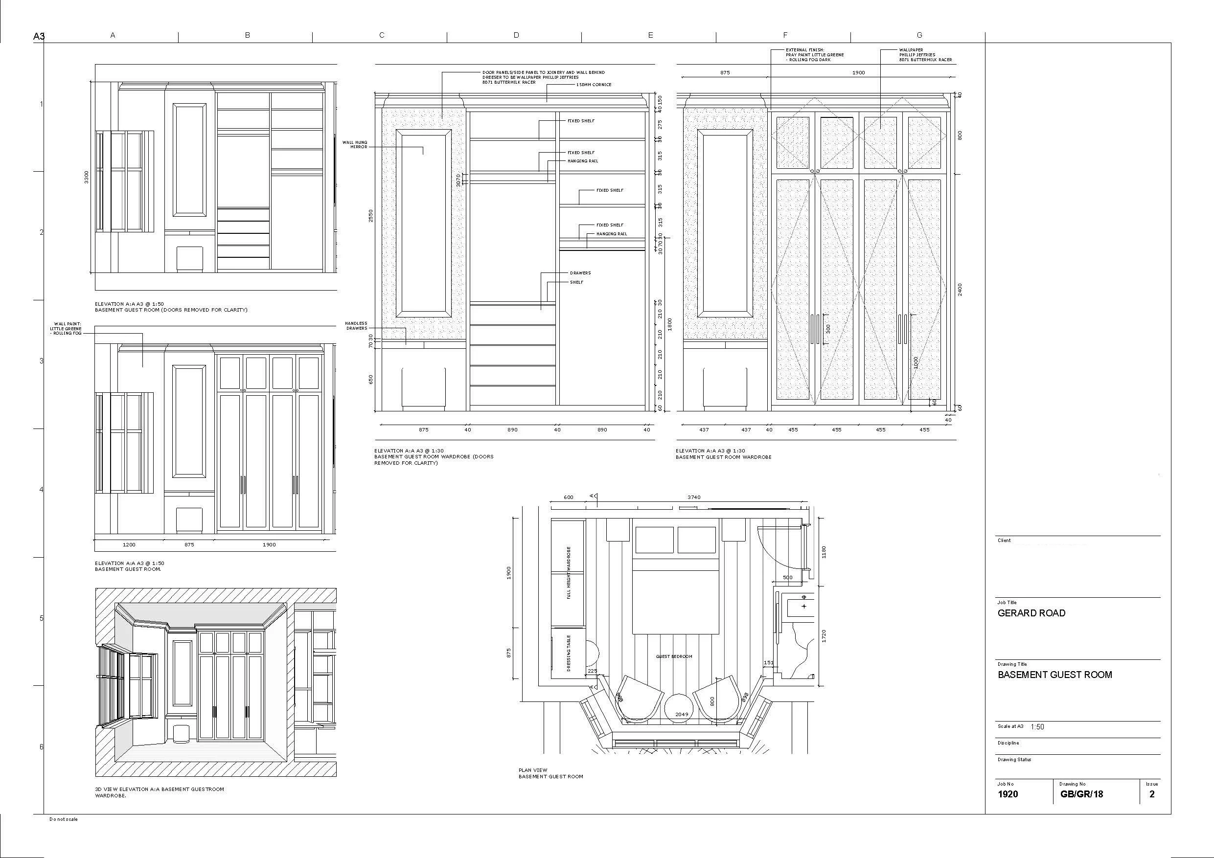
Studio Southsea was engaged by interior designer Daniela Erasmus to support the CAD drafting, 3D modelling, and 3D visualisation of the master bedroom, master en-suite, the children's en-suite bathrooms, and communal spaces within this Barnes home. The scheme prioritises a calm, quietly luxurious atmosphere, achieved through considered spatial planning and subtle, refined detailing.

In addition to still visuals, a walkthrough animation was produced for the master bedroom, dressing room, and en-suite, allowing the spatial flow and material transitions to be experienced in a more immersive way.

Client: Interior Designer | Daniela Erasmus, Owner of Daniela Erasmus Interiors

    • Visuals and drawings developed to clearly communicate design intent.

    • Walkthrough animation developed to communicate spatial flow and atmosphere

    Scope: CAD Drawings | 3D Modelling | 3D Visualisation