Ghana

GHANA

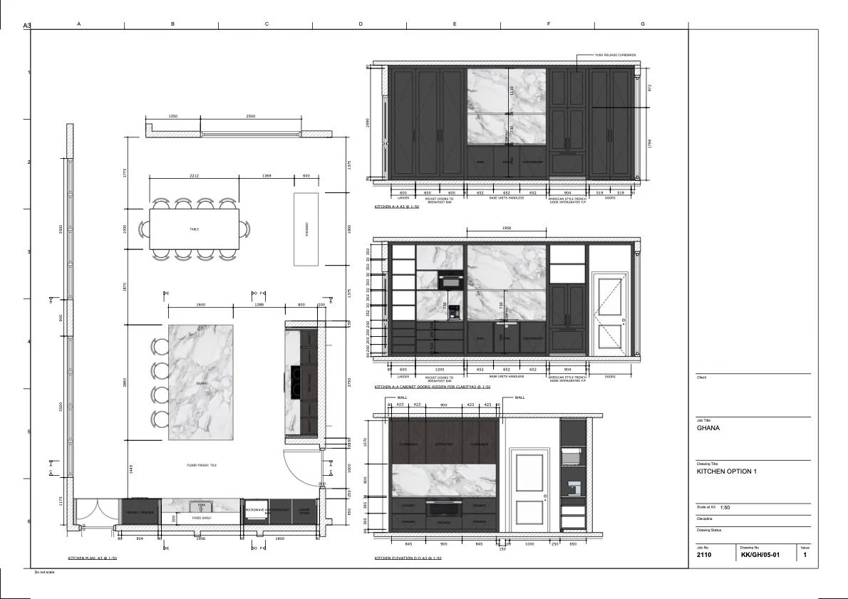
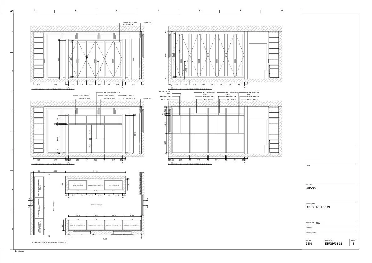
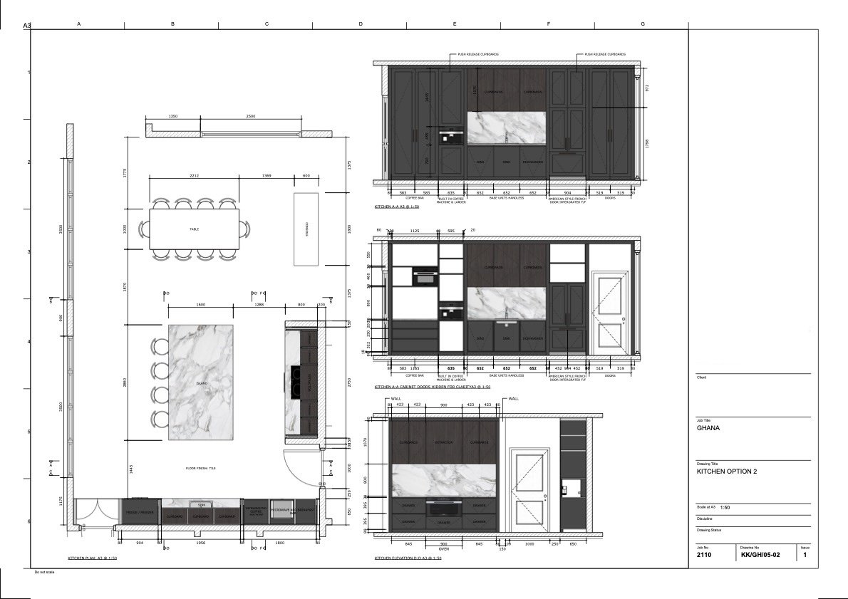
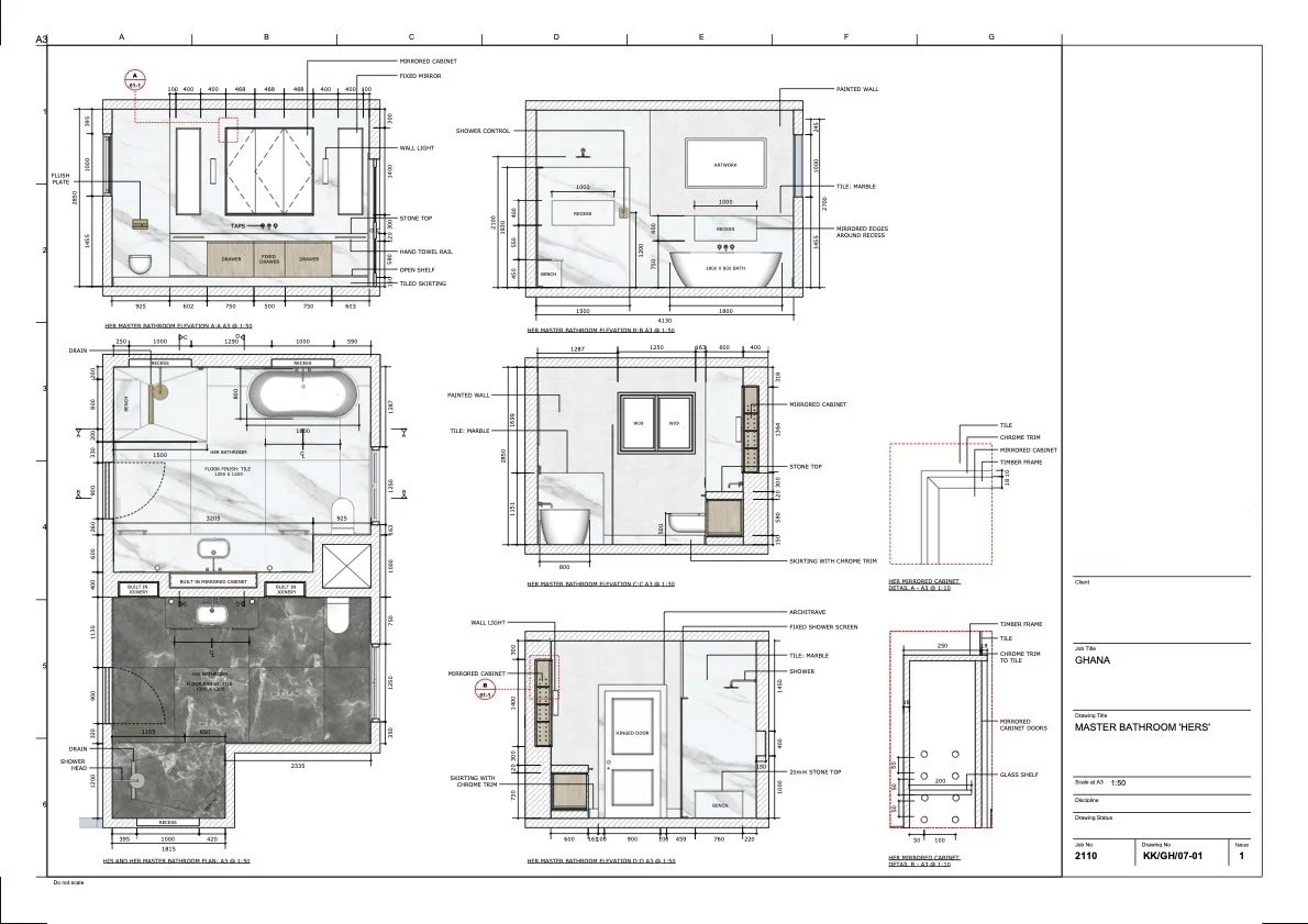
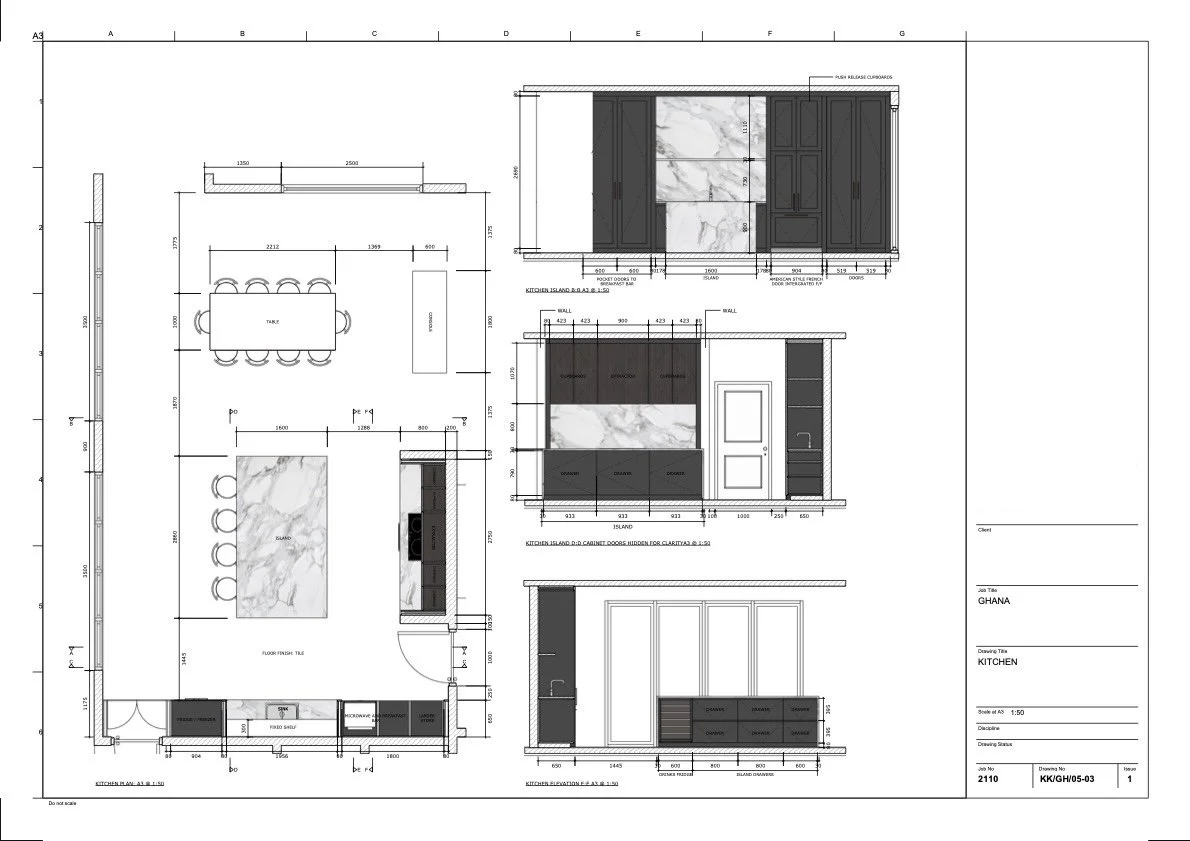
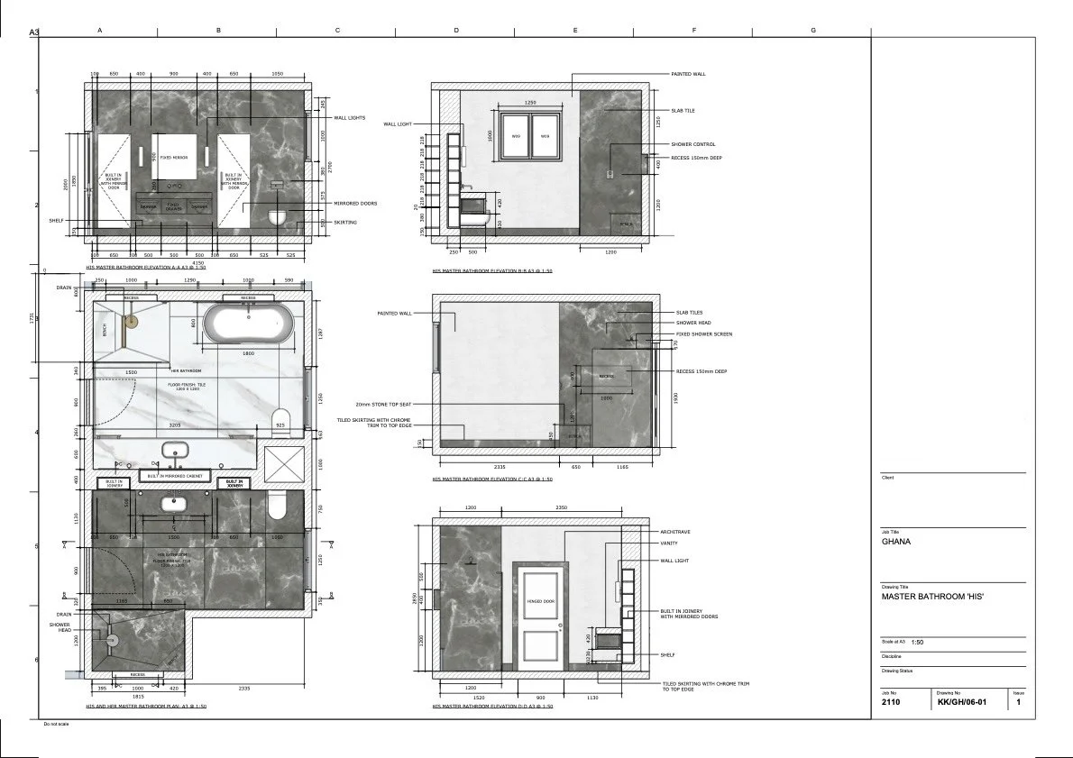
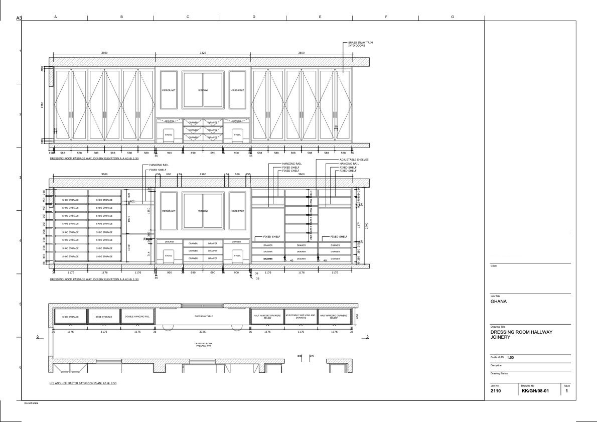
We’ve had the pleasure of working with interior designer Daniela Erasmus, owner of Daniela Erasmus Interiors, for many years. For this spacious modern home in Ghana, Daniela invited us to support her with the drawing pack and renders. With a clear design vision and strong AutoCAD expertise, she looked to us to provide additional support in developing the joinery, kitchen, and bathroom details.

Client: Interior Designer | Daniela Erasmus, Daniela Erasmus Interiors

  • A 1:1 collaborative process with Daniela, combining her design direction with our technical expertise to deliver a complete and detailed package.

    Scope: 3D Modelling | Joinery Intent Drawings | 3D Visualisation | CAD Drawing Pack