Harvest House

HENLEY-ON-THAMES

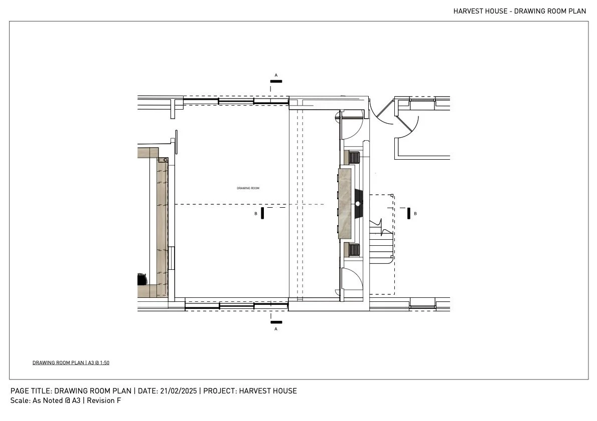
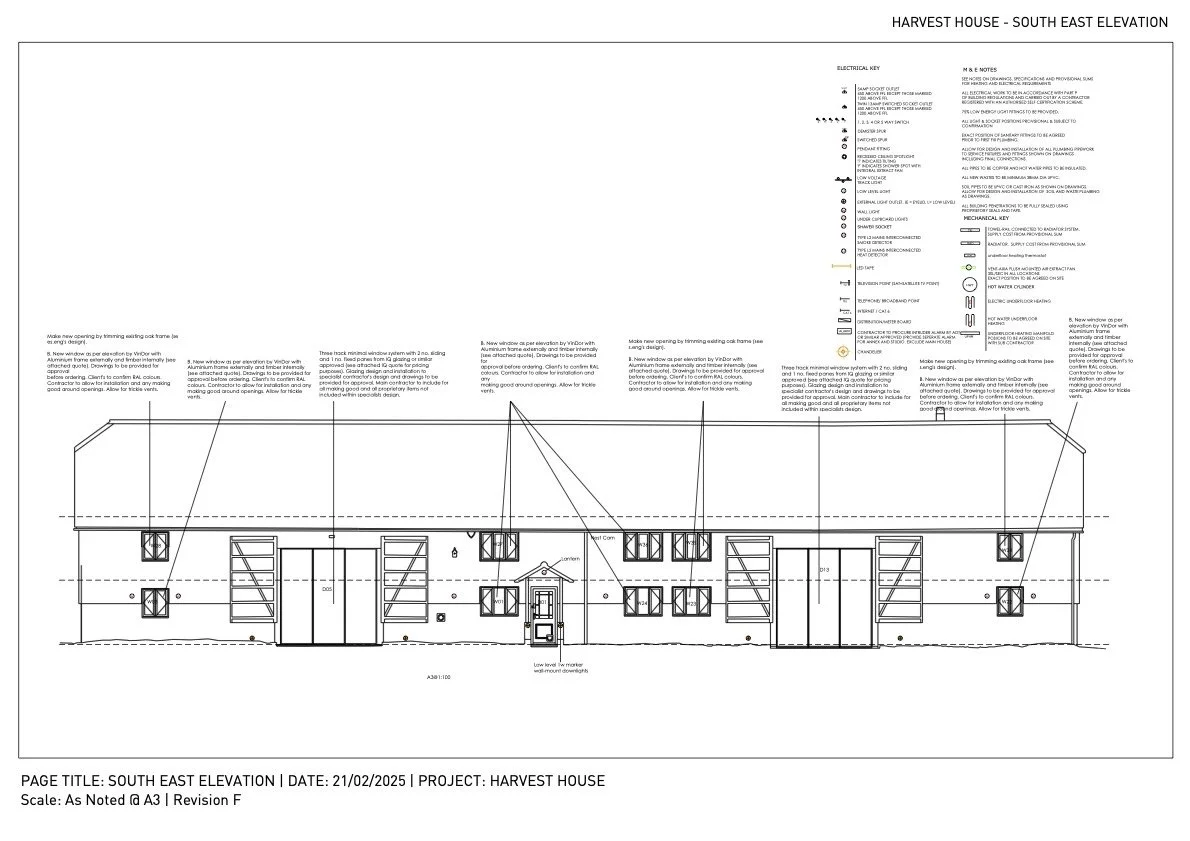
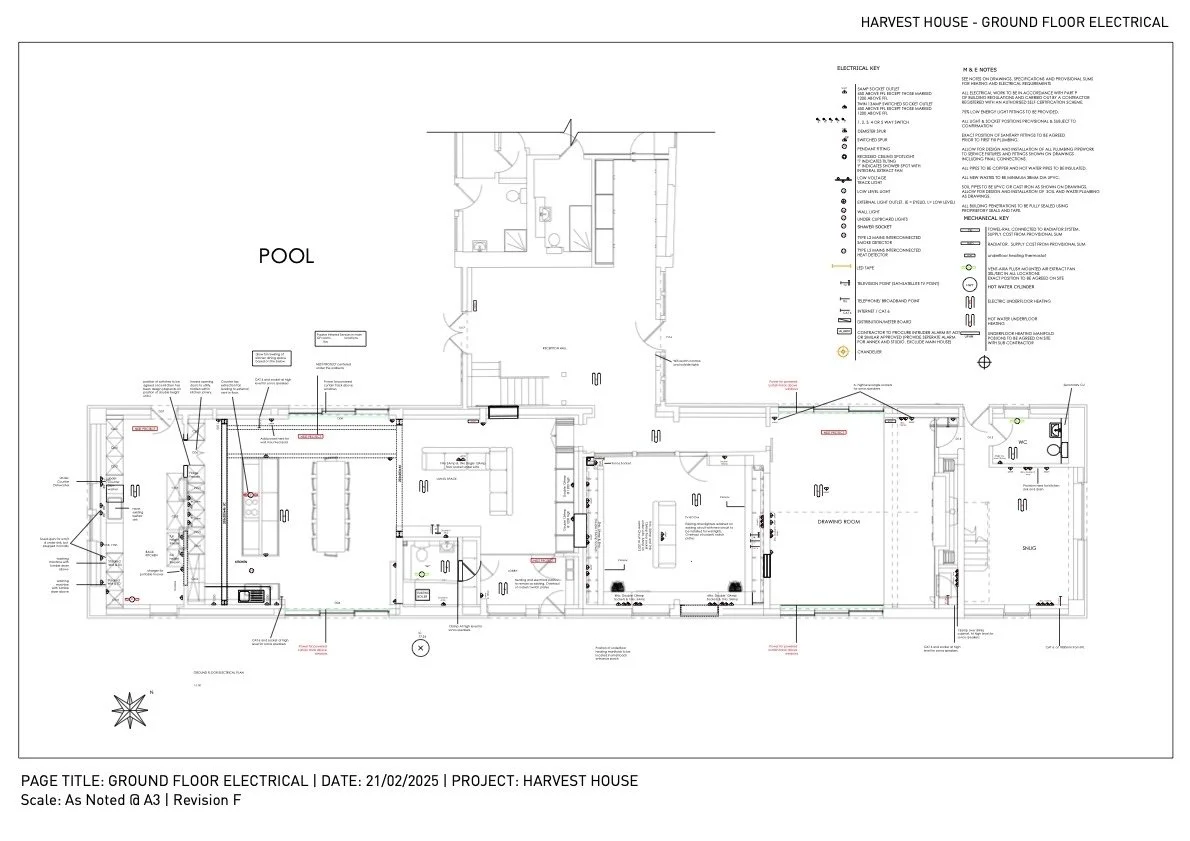
Studio Southsea supported interior designer Sarah Reed, owner of Ministry of the Interior, on the design development of this two-storey countryside barn redevelopment. The scheme celebrates the building’s existing character, in particular the exposed timber beams, while introducing a refined Japandi-inspired aesthetic through carefully considered joinery and material choices.

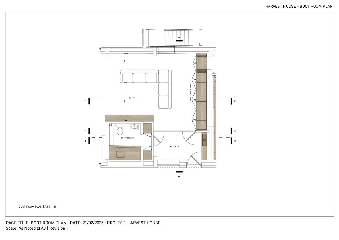
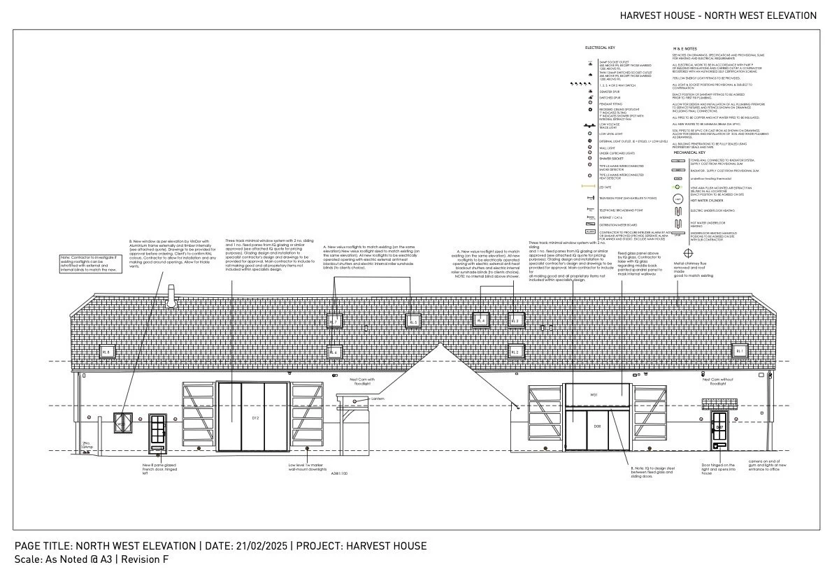
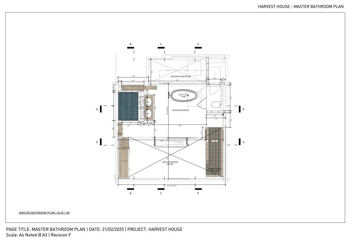
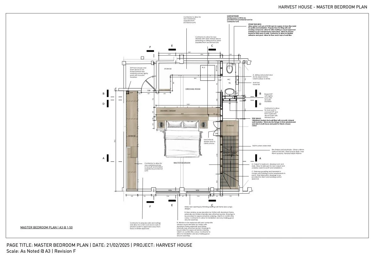
Joinery was designed throughout the home to sit harmoniously within the original structure, balancing modern, minimal detailing with the warmth of natural materials. The project was supported by a full set of design intent drawings, bespoke joinery details, and 3D sketchup visuals to clearly communicate the spatial experience, both internally and also in the garden.

Client: Interior Designer | Sarah Reed, Owner of Ministry of the Interior

    • Two-storey barn redevelopment with exposed timber beams.

    • Japandi-inspired interior with a focus on high-end, natural materials.

    • Bespoke joinery designed throughout the home.

    • Interior and garden design developed as a cohesive whole.

    Scope: 3D Modelling | Joinery Design Intent | Garden Design | 3D Visualisation