Monroe Close

SOUTHSEA

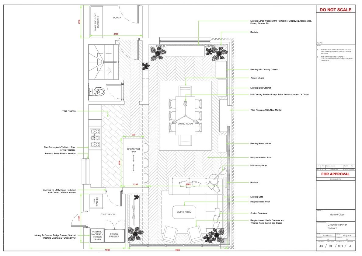
Studio Southsea was commissioned by a private client to deliver a full e-design service for this Southsea home. The project focused on reworking the ground floor layout to improve flow between the living, dining, and kitchen areas, while developing a warm, characterful interior rooted in mid-century and bohemian influences.

Following a site measure, the scheme was developed through research-led concept design, mood boards, and detailed presentations. Furniture layouts were carefully resolved to support everyday living and existing pieces, before being translated into 3D models and white visuals to clearly communicate scale, circulation, and spatial relationships ahead of implementation.

Client: Private Client

    • Full e-design service from site measure through to visualisation.

    • Open-plan layout refined to improve flow and functionality.

    • Existing furniture thoughtfully integrated into the new scheme.

    • White visuals used to test layout, proportion, and spatial clarity.

    Scope: Site Measure | E-design Service | Research | Mood Boards | Concept Development | Furniture Layout Plans | 3D Modelling | White Visuals