Queen Anne Street

LONDON

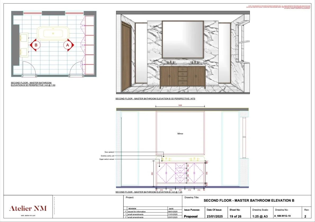
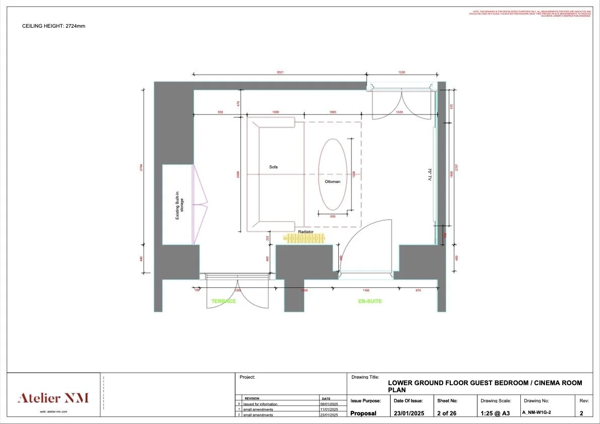
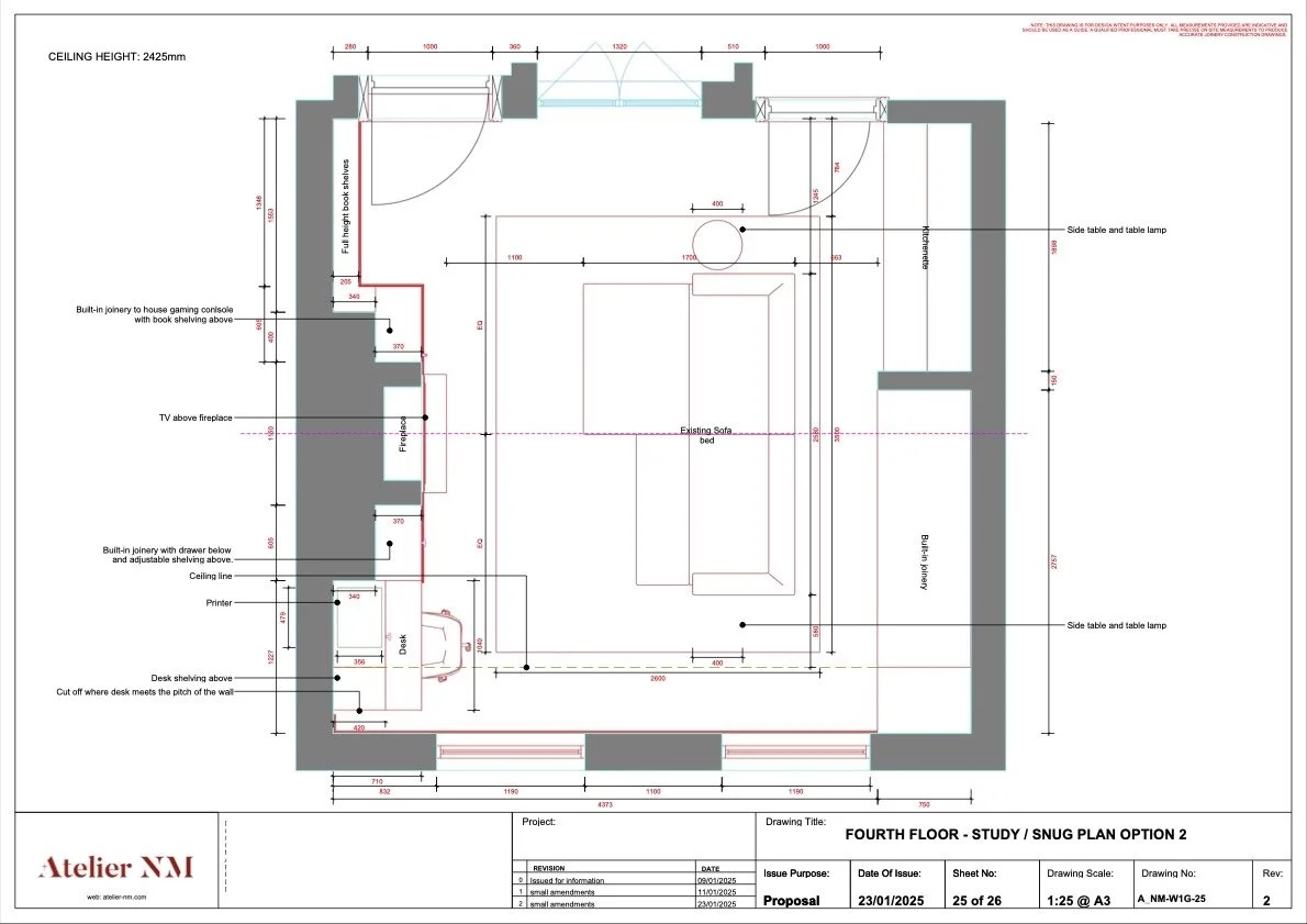
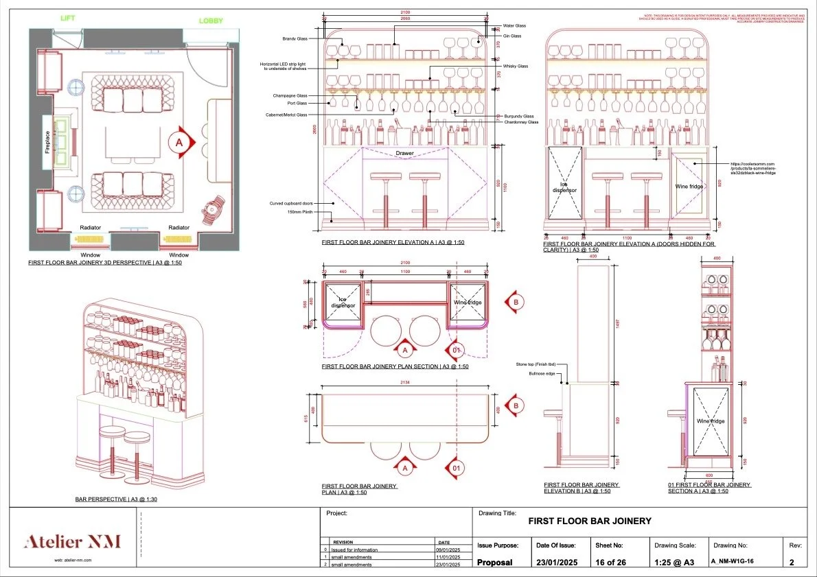
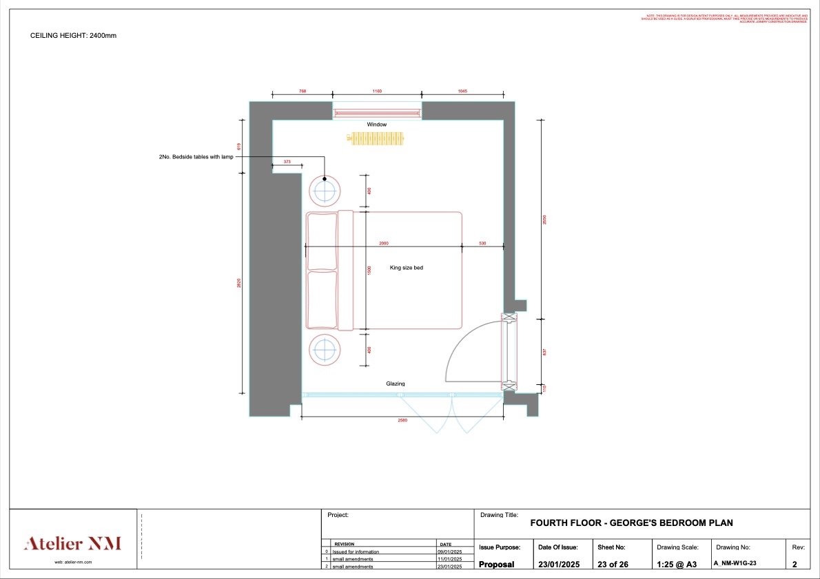
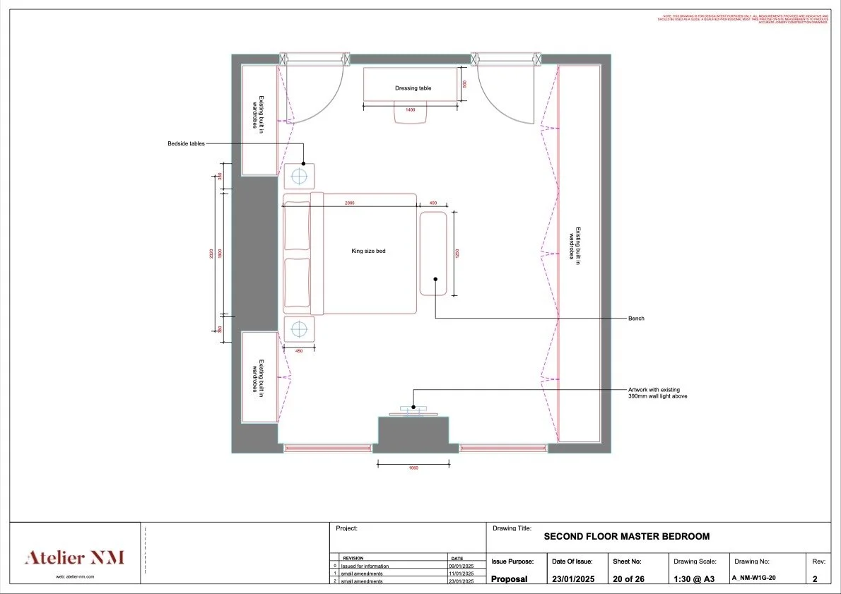
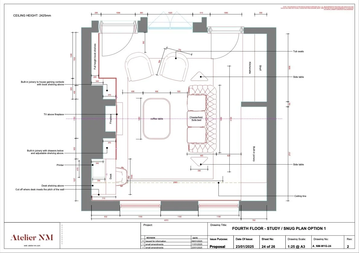
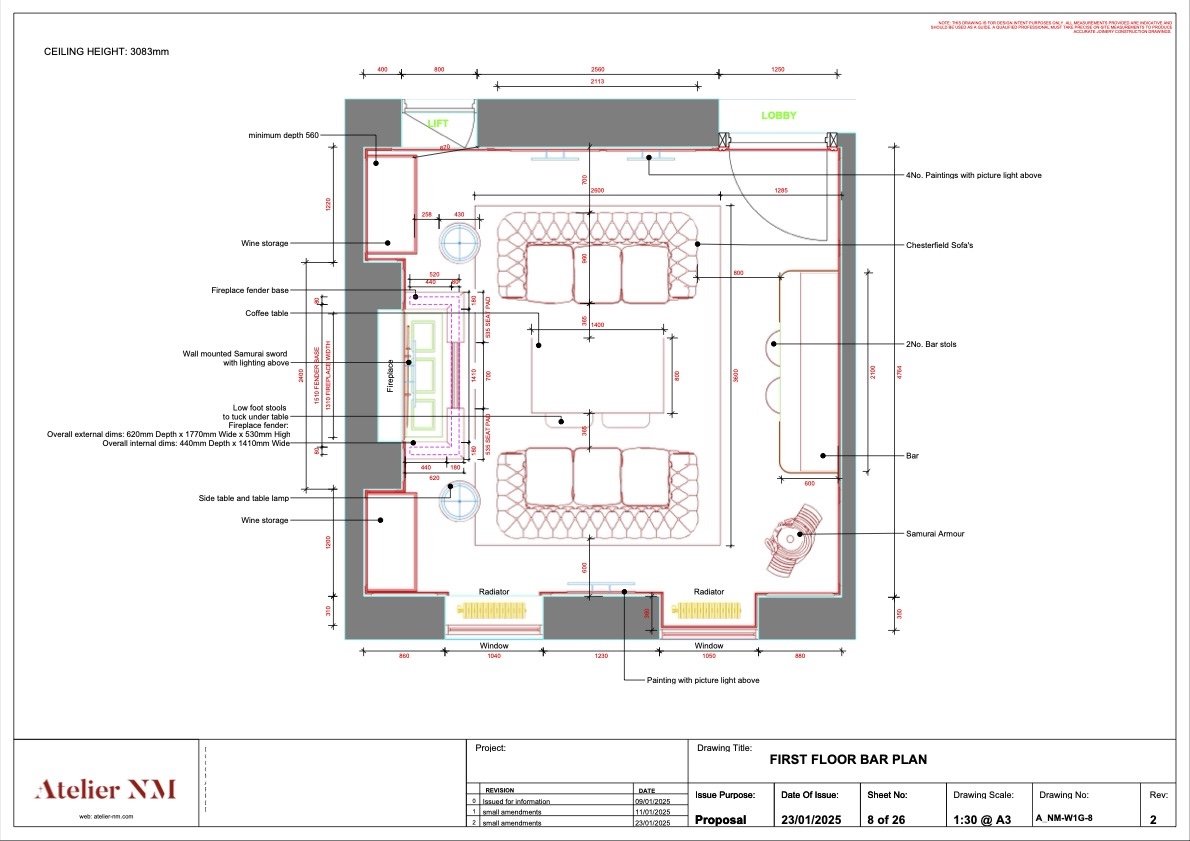
Studio Southsea was engaged by interior designer Najwa Mroue to support the spatial planning and technical development of this elegant London townhouse. The project focused on translating a highly considered interior scheme into clear, build-ready documentation, balancing heritage detailing with refined contemporary interventions across multiple floors.

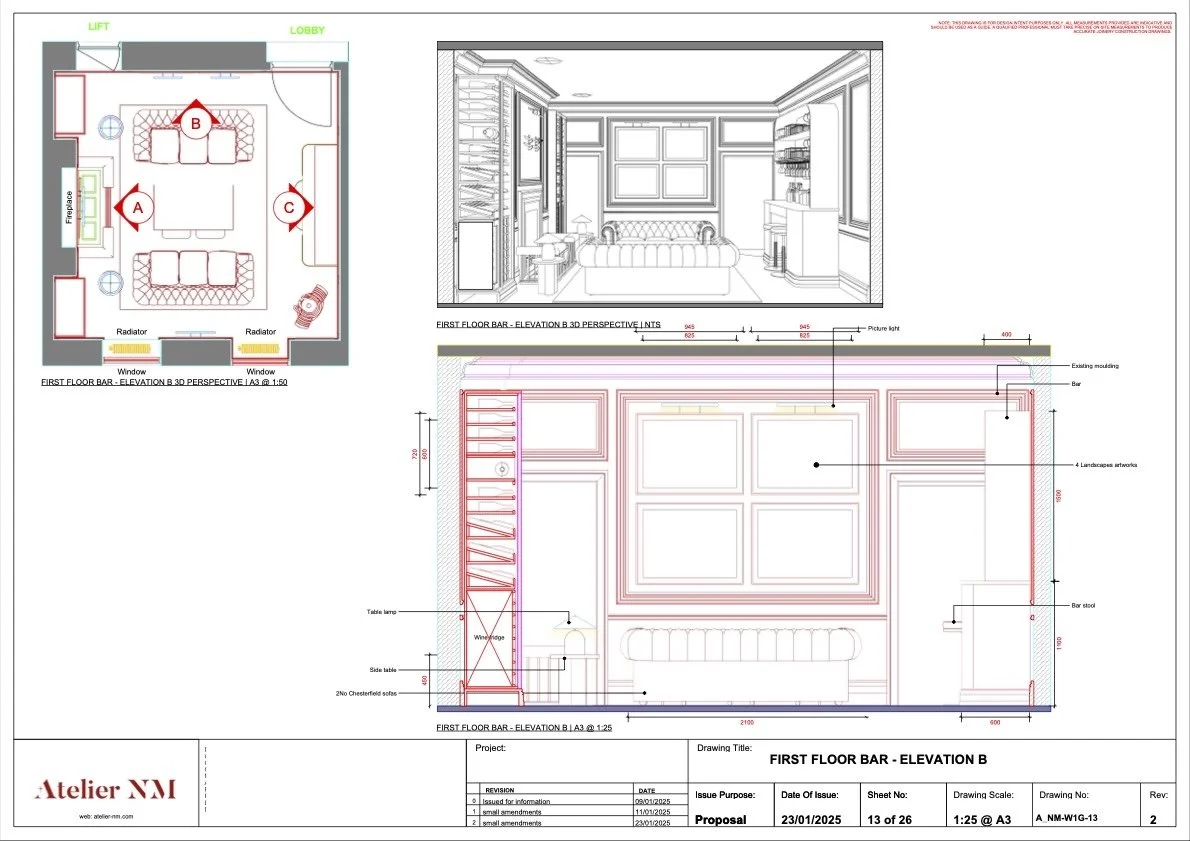
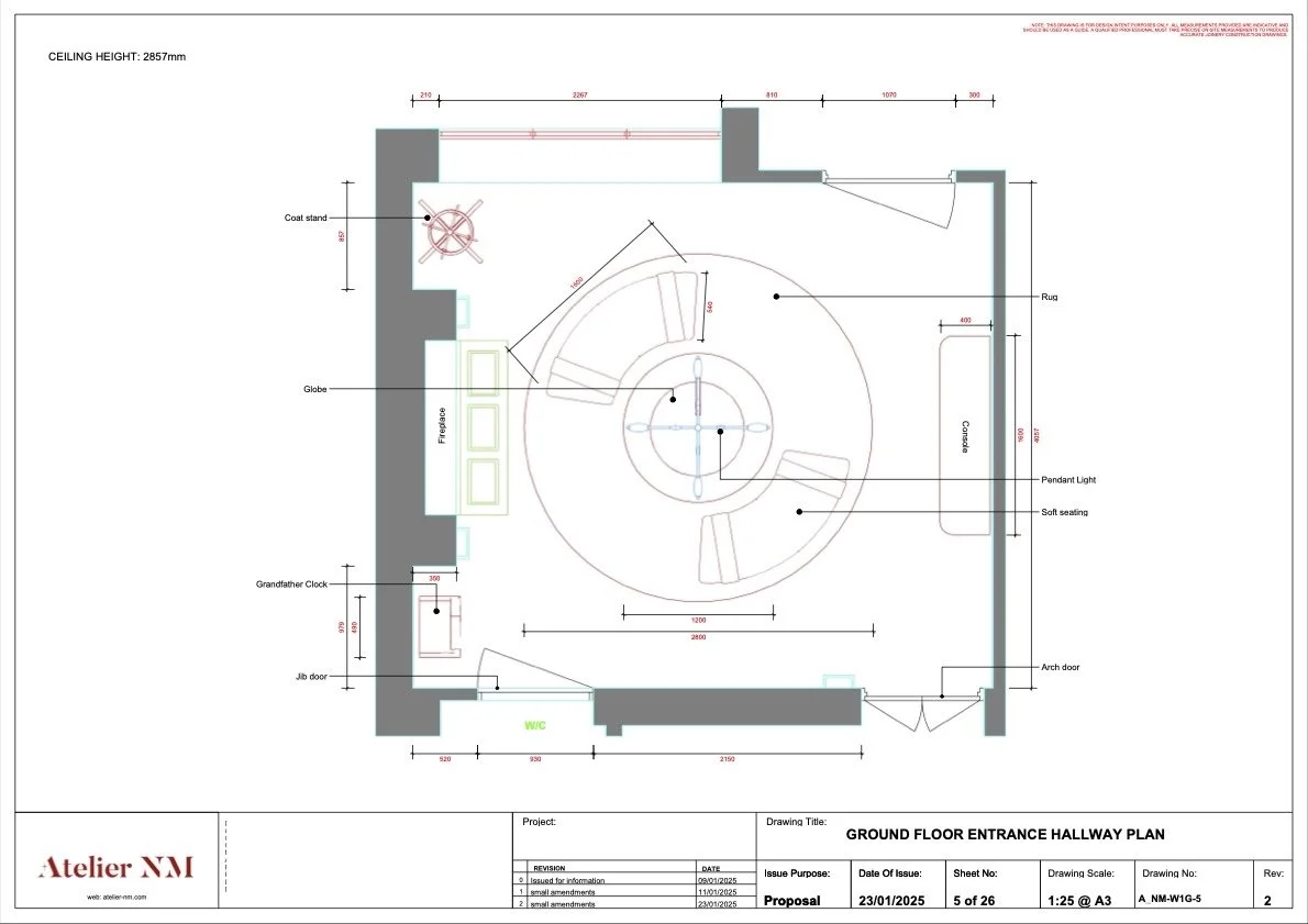
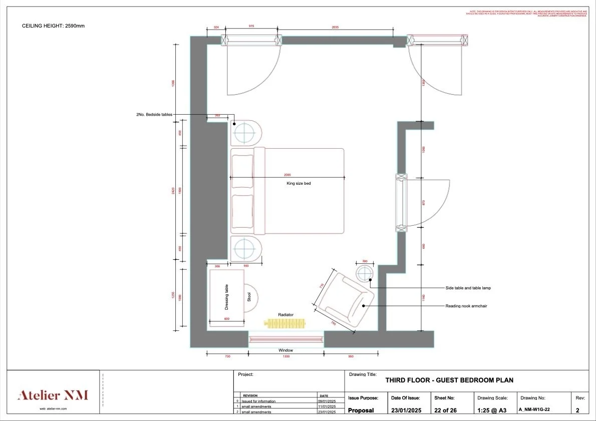
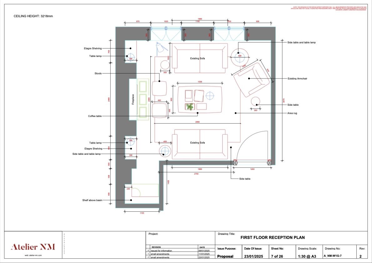
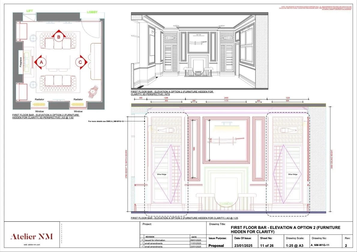
Working from dimensioned sketches, photographs, and Najwa’s design direction, Studio Southsea developed detailed furniture layouts and 3D modelling to test scale, circulation, and placement, helping to resolve the scheme ahead of further design development and delivery.

Client: Interior Designer | Najwa Mroue, Owner of Atelier NM

    • Thoughtful furniture layouts developed to enhance flow and usability.

    • 3D modelling used to test proportion, scale, and spatial relationships.

    • Clear visual support to aid design decision-making

    Scope: 3D Modelling | Furniture Layout Plans | Elevations | Joinery Design Intent