St Peter’s Square

LONDON

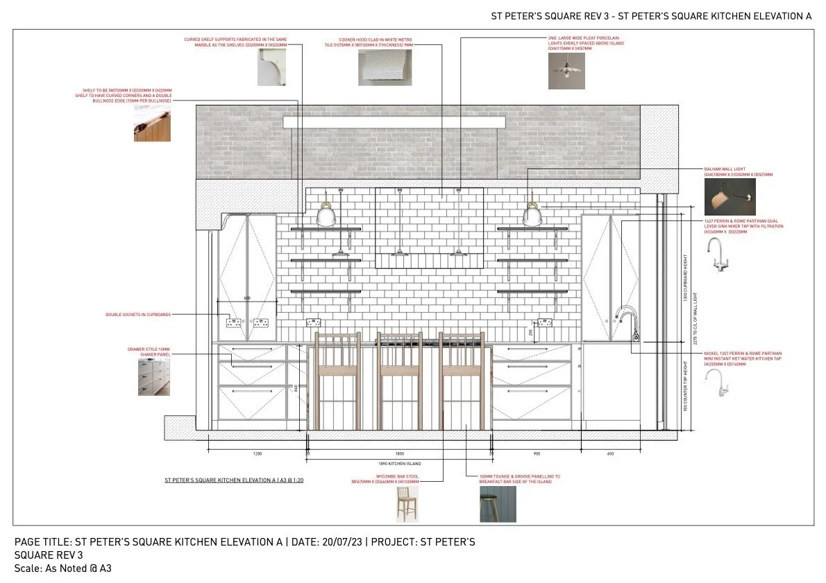
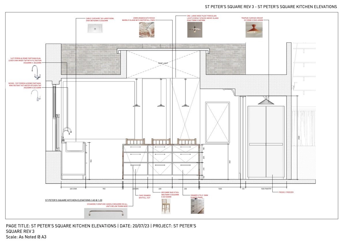
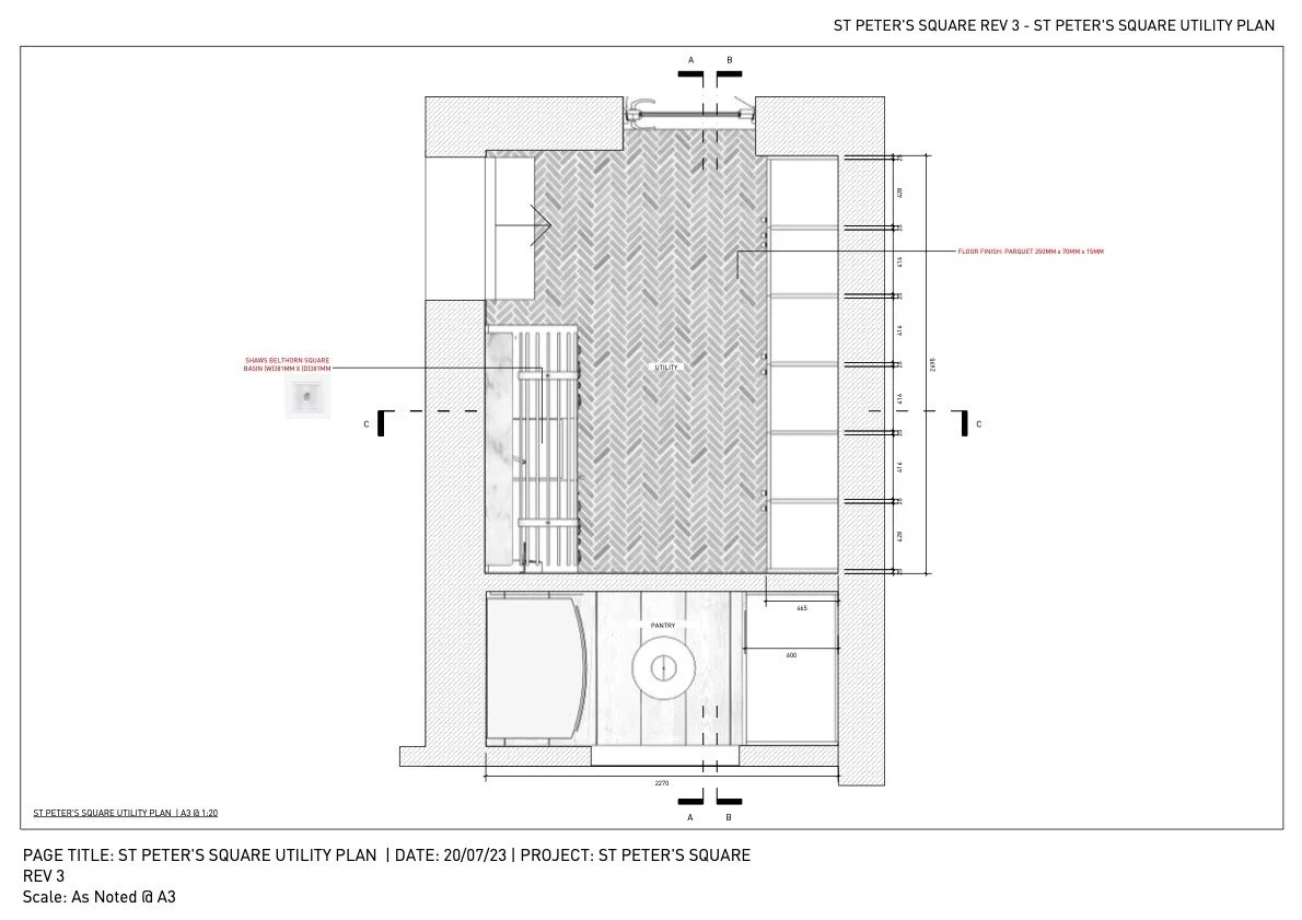
Studio Southsea was commissioned by a leading London interior design studio to support the technical development of the kitchen and utility spaces within this London home. The project focused on translating a detailed interior scheme into a comprehensive set of build-ready drawings, ensuring clarity, accuracy, and consistency across all elements.

Working from the approved design intent, Studio Southsea produced fully coordinated plans and elevations, resolving layouts, joinery detailing and lighting positions. providing contractors and fabricators with clear, reliable information for on-site delivery.

Client: Interior Design Studio (Confidential)

    • Detailed technical documentation for kitchen and utility spaces.

    • Carefully coordinated joinery, lighting, and material detailing.

    • Clear elevations and plans developed to support fabrication and installation.

    • Consistent detailing across multiple functional spaces

    Scope: Technical Design Documentation | 3D Modelling