Sumner Place

LONDON

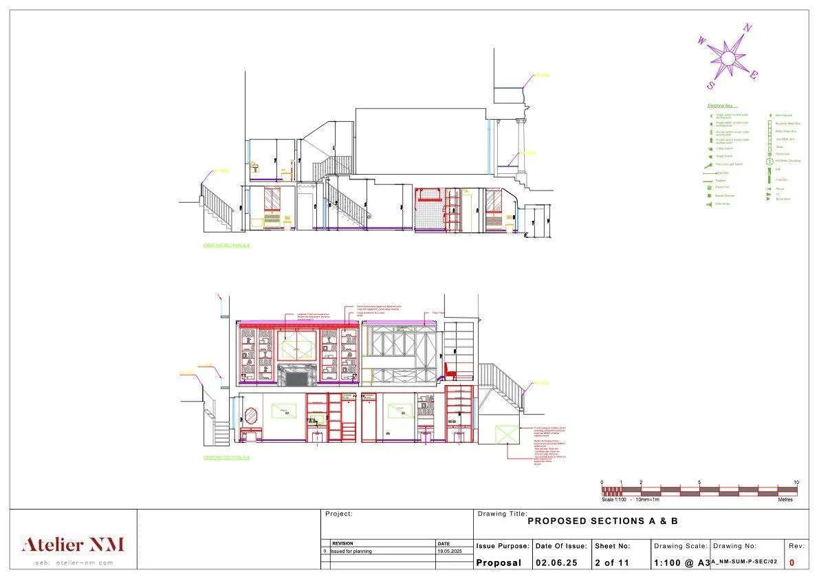
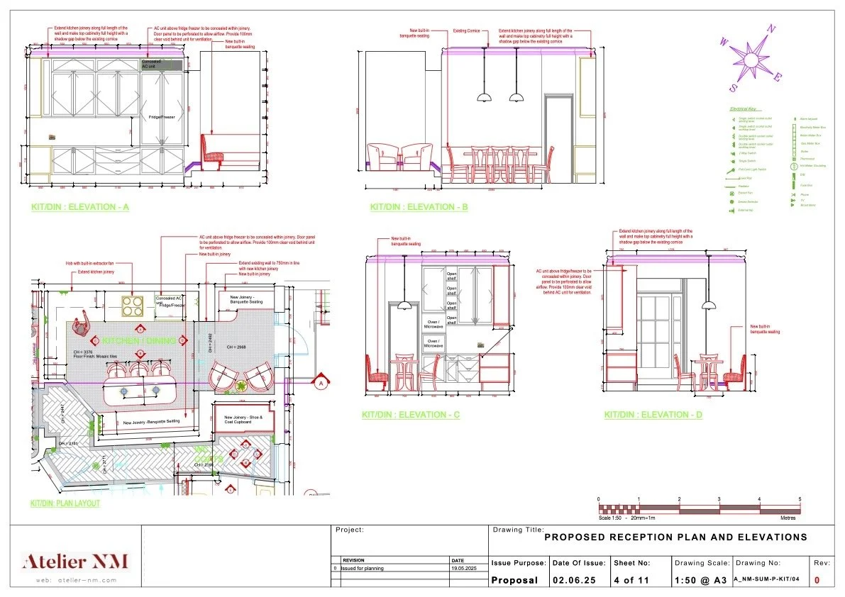
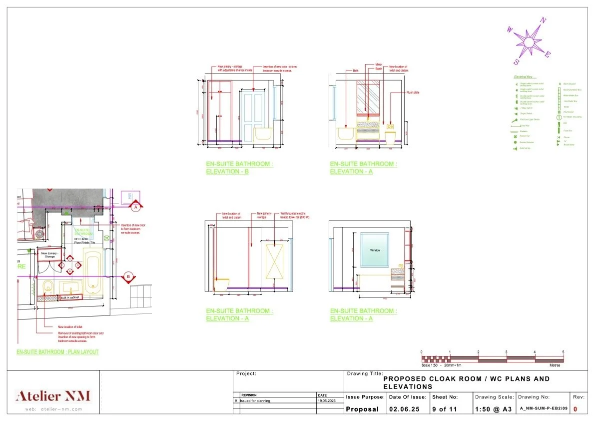
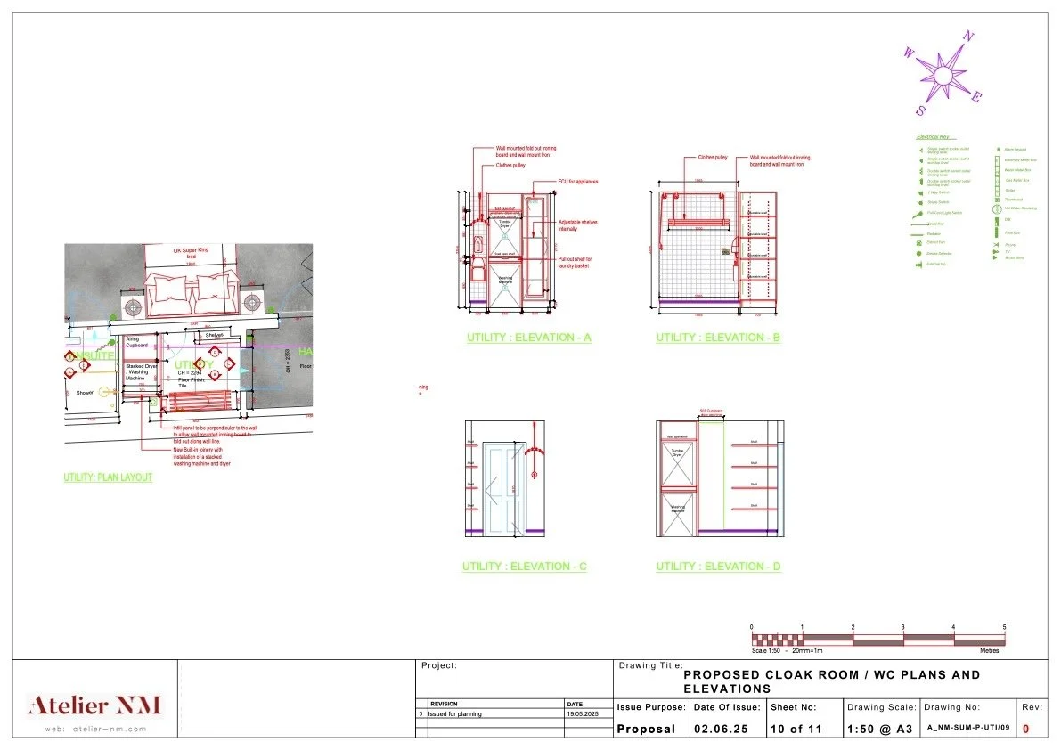
Studio Southsea supported interior designer Najwa Mroue of Atelier NM with the technical design and spatial planning for this listed London property. The project required a sensitive and considered approach, balancing contemporary living requirements with the constraints and character of a heritage building.

Our work focused on developing clear, detailed drawing packages to support planning approval, including existing, demolition and proposed layouts. Furniture layouts were carefully resolved to enhance flow and functionality, while remaining respectful of the building’s original proportions and architectural features.

Client: Interior Designer | Najwa Mroue, Owner of Atelier NM

    • Technical design developed for a listed building.

    • Detailed drawing packs to support planning submission.

    • Thoughtful furniture layouts aligned with heritage constraints.

    • Clear coordination between existing, demolition and proposed layouts

    Scope: Space Planning | Technical Design