-

IPR
-

Fitzgerald Avenue
-

23 Sumner Place
-

Queen Anne Street
-

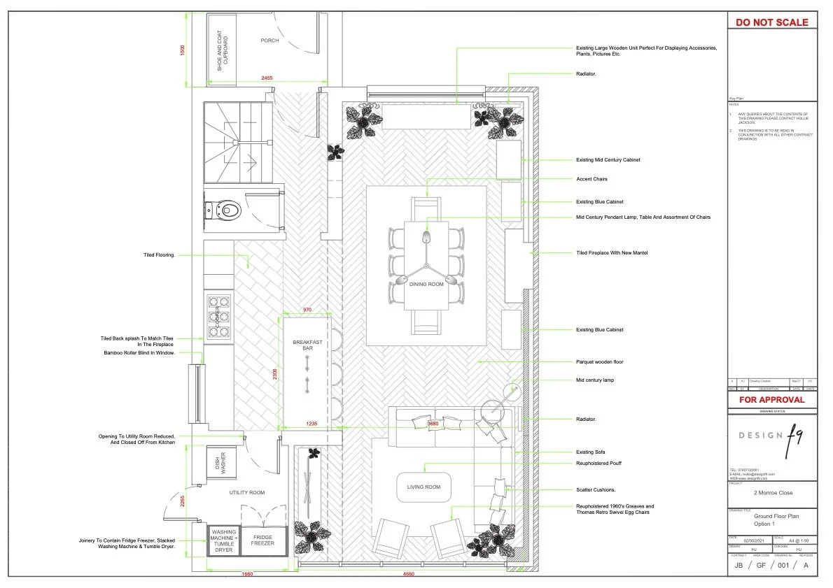
2 Monroe Close
-

St Peters Square
-

Tyelands Cottage
Previous
Previous
Renders
Next
Next